1. INTRODUCCIÓN
El escenario actual en que las exigencias de calidad están consolidandose es de vital importancia el desarrollo de alternativas que permitan, de forma eficaz, evaluar la calidad de las construcciones. Dentro de este escenario, se nota un creciente interés por el uso de Ensayos No Destructivos (END) para auxiliar en la inspección y monitoreo de estructuras de concreto armado.
Beutel et al. (2006) enfatizan que el uso de END en ingeniería civil depende de la confiabilidad de aplicación de los métodos.
Acompañando la tendencia mundial, en Brasil la aplicación de END viene creciendo en vários sectores. La expectativa es que en ingeniería civil el uso de los métodos END aún se incremente significativamente, consolidándose como herramientas vitales para auxiliar los profesionales involucrados en la gestión del desempeño de esas obras, en todas las etapas de su ciclo de vida.
Con el incremento de métodos y el desarrollo de equipamientos portátiles y confiables, los END pueden asumir relevante papel en la detección y evaluación de la severidad de defectos y anomalías derivados de fallas de proyecto, uso de dosis incorrectas, procesos inadecuados de mezclado, transporte, colocación, compactación, curado y desencofrado, además del uso incorrecto de las estructuras de concreto. Eso puede tener importante repercusión en la calidad y la vida útil del inventario de construcciones, pues los problemas han llevado al surgimiento de manifestaciones patológicas, muchas veces precoces y con costos elevados de reparación, como de estaca Figueiredo (2005).
Un aspecto relevante es que, de forma general, el uso de END ayuda a viabilizar la inspección detallada y la evaluación del estado de conservación de construcciones civiles de forma económica y eficiente. La mayoría de los métodos END permite la detección de anomalías sin ocasionar daños al material. A partir da su uso, se puede proceder a la inspección de una estructura afectada sin interrupción de servicio, propiciando una economia en términos de tiempo y de costos (Grabowski; Padaratz; Pinto, 2008).
El desafio, todavia, consiste en entender como utilizar adecuadamente los END y como interpretar mejor sus resultados, para obtener los diagnósticos confiables. El uso de técnicas END para la detección de fisuras, fallas, imperfecciones y daños se muestra eficiente en materiales homogéneos, pero cuando los mismos métodos son aplicados al concreto armado, un material complejo y variable temporalmente y espacialmente, es frecuente que se encuentren dificultades mayores en el diagnóstico, pues la heterogeneidad y el caráter dinámico de la composición y estructura de ese material pueden ocasionar interferencias diversas en los resultados.
Felizmente, el contínuo avance tecnológico en el área ha generado métodos END cada vez más robustos y adecuados para acompañar el desarrollo de nuevos materiales. Todavia, para consolidar la confianza de esos abordajes es fundamental desarrollar programas experimentales proyectados para evaluar la capacidad de cada método en proporcionar diagnósticos confiables, y entender sus limitaciones en situaciones de ensayo, especialmente en condiciones de campo, donde el control de diversas variables no puede ser efectuado (humedad, rugosidad superficial, presencia de armaduras, carbonatación de la superfície, variaciones en la resistencia del concreto, etc).
Infelizmente, el proceso de estudios y de incorporación de nuevos y más avanzados métodos END en la ingeniería civil ha tenido una evaluación lenta. Como lo enfatizado por Mehta y Monteiro (2008), el desarrollo de métodos de END para el concreto, en comparación con otros materiales estructurales, ha sido lento.
Reconociendo el potencial de esas técnicas y la demanda por estudios estructurados de las mismas, el Grupo de Investigación LEME de la Universidade Federal de Rio Grande del Sur decidió, aún en la década de lós 90, establecer una línea de investigación dedicada al estudio y evaluación de métodos END, que han generado vários trabajos relevantes en el área. El método más estudiado en el LEME-UFRGS fué el ensayo de Velocidad de Pulso Ultrasónico (VPU), uno de los más simples y populares métodos END para evaluación de compacidad y homogeneidad del concreto. Solamente para ese método, se han realizadas, en los últimos 25 años, diversas investigaciones innovadoras sobre diferentes aspectos del ensayo y de sus aplicaciones, tales como: mapeamiento de daños microestructurales luego de la exposición a altas temperaturas (Lima, 2005); investigación de la capacidad de detección de fallas (Chies, 2014); y desarrollo de modelos avanzados de estimación de resistencia a partir de datos de VPU con uso de redes neuronales (Lorenzi, 2009), entre otros.
Recientes avances en la adquisición de datos computarizados, en el procesamiento de imágenes digitales en el desarrollo de teorias complejas para medios heterogéneos ha contribuído para el perfeccionamiento de los ensayos de VPU, y estudios sobre el uso de la tomografia de ultrasonido están en proceso.
Este trabajo forma parte de un programa más amplio diseñado por el LEME con el objetivo de evaluar la capacidad del método de detectar fallas de vaciados de concreto en elementos fabricados en el laboratório, por tanto, con dimensiones y características semejantes a las encontradas en estructuras reales.
La investigación busca contribuir para que se conozca mejor las potencialidades y las limitaciones de los diagnósticos efectuados sobre la base en lecturas hechas con aparatos de ultrasonido portátiles, al recoger datos sobre cuanto algunas variables no controlables en campo interfieren en lós resultados y, eventualmente, dificultan la detección de fallas internas del concreto. Ese carácter de diferenciar la investigación, en relación con la mayoría de los estudios, que analizan con probetas de pequeña escala en ambiente de laboratório, es uno de los principales aspectos que justifican la realización del estudio.
2. RELEVANCIA DEL ESTUDIO
La presente investigación trabajó con un subconjunto de datos de un amplio programa experimental de investigación de uso de UPV para análisis de estructuras reales, cuyos resultados están publicados de forma más completa en los trabajos de Adamatti (2013) y Chies (2014).
El subconjunto de datos analizado en este artículo fué recolectado con el objetivo de evaluar la capacidad de detección de vacíos y fallas ocultas (sub superficiales), en condiciones similares a las de obras reales.
La cuestión central de esa parte de la investigación consistía en averiguar hasta que profundidad se puede efectuar un adecuado diagnóstico sobre la presencia de vacíos, usando la estratégia de mapeamiento superficial con base en lecturas indirectas de UPV, frecuentemente adoptada en casos reales. Por lo tanto, como lo descrito en el item 4, fueron inducidos defectos y efectuadas perforaciones en bloques de tamaño natural de concreto.
El conocimiento sobe cual es el limite de profundidad crítica para la detección puede ser una información fundamental en la evaluación de estructuras reales con ese método. Aún cuando haya formulaciones teóricas sobre cuál seria esa profundidad, la toma de datos en condiciones semejantes a las encontradas en obras reales, con las perturbaciones frecuentemente encontradas en la prática (variaciones de rugosidad superficial, presencia de armaduras, variaciones en el concreto, cambio de operador, entre otras) es fundamental para que evalúe la robustez y confiabilidad de eventuales diagnósticos de campo.
Praticamente no hay estudios con ese abordaje en América Latina. De esa forma, se considera que los resultados presentados representan un aporte importante para usuários e investigadores del área.
3. ANÁLISIS DE ESTRUCTURAS DE CONCRETO A TRAVÉS DE LOS ENSAYOS ULTRASÓNICOS
El método de VPU está basado en la determinación de la propagación de un pulso ultrasónico a través de un material. El mismo es um método bastante utilizado para evaluación del concreto, debido a su eficacia, simplicidad de aplicación y también por su costo.
A través del uso del ensayo de VPU se vislumbra la capacidad de detección de fallas en el interior de estructuras de concreto, permitiendo efectuar un barrido completo y adecuada del concreto, como indican, por ejemplo, estudios realizados para evaluar la degragación de propiedades mecánicas del concreto y del mortero (Nogueira, 2009); la influencia de la presencia de armaduras en la estimación de la profundidad de fisuras superficiales (Medeiros et al., 2009), y la capacidad de monitoreo de estructuras de concreto armado (Lorenzi et al,. 2009).
De acuerdo con la norma BS 1881-203 - Recommendations for measurement of velocity of ultrasonic pulses in concrete (BSI, 1996), las mediciones de la velocidad de pulso hecha en estructuras de concreto pueden ser utilizadas para el control de calidad del material.
Comparando con ensayos mecanicos en muestras de control, como cubos ó cilindros, las mediciones de VPU tienen la ventaja que ellas se relacionan diretcamente con la estructura del concreto al contrario de muestras que ni siempre representan al concreto “in situ”.
La VPU debe estar relacionada con los resultados de pruebas en componentes estructurales y si se CREA una correlación con la resistencia u otras propiedades necesarias de esos componentes, es apropiado hacer uso de ella.
A pesar de la gran cantidad de estudios sobre el VPU, existe una dificultad en relacionar la VPU y la resistencia a la compresión del concreto. Con vistas a solucionar este problema, Lorenzi (2009) utilizó Redes Neuronales Artificiales (RNAs) para correlacionar de forma eficiente la VPU y la resistencia del concreto.
Diversos factores influyen en la propagación del pulso ultrasónico del concreto. La cantidad y la posición de la armadura en el concreto ejercen influencia en la VPU, pues en el acero la velocidad es aproximadamente 40% mayor que el concreto, principalmente cuando las barras son orientadas paralelamente a la dirección de la propagación del pulso. Otros factores, como la presencia de rajaduras y vacíos a lo largo del camino de la propagación del pulso, la cantidad y el tipo de agregado el contenido de humedad del concreto, también ejercen influencia importante sobre los resultados, como lo explicado en la ACI 228.1R-03 (2003).
Según Naik y Malhotra (1991), el contacto perfecto entre los trasductores y el concreto del elemento en estudio constituye un punto crítico deese método. En caso de que el contacto no sea logrado, se forma una bolsa de aire entre el transdutor y el elemento, que acarrea un error en la determinación del tiempo de recorrido de la onda. Este error ocurre debido al hecho de que solamente una parcela insignificante del pulso puede ser transmitida por el aire. De modo de asegurar el perfecto contacto, se recomienda el uso de productos, tales como grasa y gel, que deben ser aplicados en finas capas.
Los valores de VPU se ubican en una franja restringida, haciendo necesaria una medición rigorosa (margen de error de ± 1 %), tanto del largo del recorrido como el tiempo que dura la onda. Además de eso, las mediciones de los valores de VPU pueden ser influenciadas por diversos factores, tales como: textura de la superfície, contenido de humedad, temperatura, tamaño de las muestras, presencia de armaduras y nível de tensión. Además, según esa norma, las correlaciones entre el valor de VPU y la resistencia a la compresión son difíciles de ser obtenidas, pues ellas son influenciadas considerablemente por las propiedades y proporciones de los materiales constituyentes, así como por la madurez del concreto, (BS 1881: Part 201, 1986).
A pesar de todas estas dificultades del uso del VPU está cada vez más difundida en el área de la ingeniería civil. El mismo ha sido utilizado en operaciones de inspección y monitoreo de estructuras de concreto, pues permite que se midan y controlen una série de parámetros fundamentales para determinar la calidad del concreto, tanto en laboratório como en ensayos de campo.
El ensayo de VPU pasa a constituir una importante herramienta de análisis de las características de las obras. A través de su uso se consigue correlacionar la velocidad ultrasónica con la homogeneidad del concreto que es objeto de análisis. Por tanto, es necesario establecer modelos estadísticos para cada caso que consideren el efecto de las diferentes variables que afectan la propagación de las ondas ultrasónicas del concreto. Todavia la correlación entre estas grandezas depende de varios factores y está sujeta a ciertas limitaciones. Estas dificultades son, entretanto, minimizadas cuando se acompaña la misma estructura a lo largo del tiempo. En este caso, el VPU permite que sea posible evaluar como el proceso de curado interviene en la estructura.
Otra alternativa es la generación de modelos neuronales, según Lorenzi (2009), que permitan realizar un análisis no lineal de la relación existente entre la resistencia del concreto y la VPU, tomando en consideración parámetros como el tipo de cemento, la temperatura de curado, la relación água/cemento (a/c) la edad del concreto. A través de la aplicación de las RNAs se espera generar modelos de relacionamiento no lineales que permitan estimar la resistencia del concreto a partir del conocimiento de estas informaciones básicas y de los resultados de ensayo de VPU, de modo de producir métodos numéricos robustos y flexibles para la estimación de la resistencia a la compresión a partir de datos de VPU.
De acuerdo con la norma brasileña NBR 8802 (ABNT, 2013), existen tres posibilidades de colocación de los trasductores: (a) transmisión directa - que es el arreglo más recomendado en la determinación de la velocidad de propagación de ondas a través de un material, pues de esta forma las ondas son recibidas con mayor intensidad y se movilizan de forma cara a cara, (b) transmisión indirecta - utilizado cuando se tiene acceso a apenas una cara de la probeta ó del componente a ser inspeccionado y (c) transmisión semidirecta - arreglo solamente utilizado cuando no hay la posibilidad de uso del sistema directo ó semidirecto. En esta situación los trasductores son posicionados en dos caras perpendiculares.
La presente investigación se usó el modo de transmisión indirecta, arreglo utilizado cuando se tiene acceso a apenas una cara del elemento o del componente a ser inspeccionado, permitiendo que el transdutor-receptor pueda recorrer la cara que será analizada, manteniendo el transdutor fijo. Este arreglo no es tan eficiente como el sistema directo, en la medida en que sufre la interferencia de una gran área del componente o elemento analizado, llegando a obtenerse valores de VPUs hasta 50% inferiores a los obtenidos con el modo de transmisión directa. Siempre que sea posible, se debe utilizar sistemas de mediciones directos e indirectos buscando obtener factores de correlación del tiempo de propagación de la onda ultrasónica. Para Ramirez (2015) este método es el más propenso a errores y es menos satisfactorio porque la amplitud de la señal recibida es significativamente menor que el obtenido por el método de transmisión directa. Por tanto, el método directo demanda un número significativamente mayor de lecturas para la evaluación de una misma superfície.
4. CONCEPCIÓN EXPERIMENTAL
Con el objetivo de identificar y cuantificar la influencia de determinadas variables en los resultados de END utilizando VPU, el programa experimental buscó averiguar como se comporta ese método cuando se busca realizar diagnósticos sobre defectos y fallas de vaciados en elementos de concreto a escala natural.
Para viabilizar esa investigación fueron generados dos bloques de concreto de dimensión ancha (caras de 1,7m y largo de 0,60m, totalizando 1,734 m3), con y sin presencia de armadura, siendo en uno de ellos introducidas esferas de anime para simular la presencia de fallas de vaciados, en diferentes profundidades.
Los bloques fueron mapeados por la cara más rugosa (tope de forma durante el vaciado y por la cara más lisa (base del molde), usando medidas indirectas, con más de un operador, con y sin uso de gel acoplante, usando cuadrículas de medición con dimensión variable, de forma de simular condiciones que eventualmente pudieran ser encontradas en estructuras reales sobre el análisis. Como ya fué discutido, el relato detallado de los ensayos y sus resultados pueden ser encontrados en Adamatti (2013) e Chies (2014).
Adicionalmente, en un según momento, fué generada, en uno de los bloques, una perforación, a partir de la cara lisa, cuya presencia fué monitoreada por medio de los ensayos de UPV realizados a partir de la cara rugosa. La perforación tenía diametro de 5 cm y la profundidad fué incrementada gradualmente, de forma que la distancia del hueco para la cara de monitoreo fuese disminuyendo. La ideia fué verificar a partir de que profundidad la perforación seria captada en los mapeamientos. De esa forma se buscó averiguar cuál es la capacidad potencial de diagnóstico de un defecto no visible en términos de profundidad.
5. MATERIALES Y MÉTODOS
Para la elaboración de los elementos de ensayo fueron generadas formas con el uso de compuesto plastificado y encofrado en madera de eucalipto, buscando aproximarse de la forma de elaboración de una estructura real de concreto. Las formas fueron montadas de manera de obtener dos caras cuadradas con arista de 1,70m, con rugosidades distintas, una lisa (fondo de forma) y otra rugosa (tope del molde - sin contacto con el compuesto). La Figura 1 muestra una de las formas utilizadas para la elaboración de las paredes.
Las dimensiones globales de los elementos concretados eran de 1,70m x 1,70m x 0,60m. El valor de 1,70m fué escogido para que se pidiera tener, un cuadrícula de medición mayor, una célula de medición con la dimensión máxima posible que un operador lograra efectuar las medidas, solo, con el mínimo de confort ergonomico, y generar datos razonablemente utilizables.
A partir de experiencias anteriores en trabajos de campo y estudios desarrollados por el equipo del LEME/UFRGS, la célula máxima de cuadrícula de medición considerada adecuada por tanto es hecha de un cuadrado con 75cm de arista. De esa forma, se pretende generar un cuadrante de medición de 1,50m x 1,50m en el bloque, abarcando 4 células.
Para evitar realizar mediciones próximas a los bordes, lo que puede generar efectos que interfieren en los valores de VPU medidos, fueron adicionadas franjas de 10 cm en el entorno de la cuadrícula de lectura, totalizando la superfície total de 1,70m x 1,70m definida para el elemento.
Los moldes fueron producidos con 60cm de profundidad, con la intención de simular elementos robustos, haciendo posible evaluar la capacidad del ensayo de VPU para localizar fallas de vaciados a diferentes profundidades.
En la elaboración de las paredes fué utilizado concreto premezclado, dosificado en central concretera y transportado por medio de camión mezclador hasta el laboratório, siendo colocado directamente en lós moldes. Fué requerida una resistencia característica a la compresión a los 28 dias de edad (fck) de 30 MPa, siendo usado um trazo preestablecido y conocido por la central dosificadora de concreto para ese nível de resistencia. Se busco a ló largo del proceso aproximarse de los procesos empleados para vaciados de obras reales.
Para representación de la existencia de fallas de vaciados en una de las formas fueron fijadas, con auxílio de hilo de nylon, esferas macizas de anime con diametros variando entre 2,5cm y 15cm, en diferentes posiciones pré definidas. Las esferas de anime con diametro de 2,5cm y 5cm buscaron representar pequeñas fallas, como burbujas de aire ó materiales indeseados. Ya las esferas de anime con diametro de 10cm y 15cm buscaban representar fallas mayores, derivadas de segregación del concreto, problemas en juntas de vaciados y vacíos debido a concentración de armadura.
El posicionamiento y la profundidad de los vacíos fueron pensados de forma con que se pudieran tener combinaciones iguales para ambas caras. Con eso se hace posible evaluar la capacidad de detección de vacíos con diametros de 2,5cm, 5cm y 10 cm a profundidades entre 5cm y 50cm tanto para una situación con superfície rugosa como para lisa (Figura 2).
Debido a la dimensión del vacío de 15cm de diametro ser relativamente grande en comparación a los demas, su posición quedó limitado al centro de la pared, a una profundidad de 30cm de ambas caras.
Para iniciar las lecturas de VPU, se esperó el tiempo mínimo de 28 dias de vaciado, de forma de minimizar la influencia de la variación de la resistencia del concreto en las lecturas.
Las variables envueltas en los ensayos de determinación de la VPU fueron: distancia entre los puntos de transmisión y recepción de pulsos ultrasónicos, condiciones de la superfície y profundidad de los vacíos, siendo que para estas definiciones se usen las especificaciones del equipo.
Fueron identificadas y demarcadas las áreas efectivas de lectura, que corresponden a 1,50 m x 1,50 m de los 1,70 m x 170 m totales de la pared. Hecho esto fueron marcados los puntos de posición de los transductores para la malla de la cuadrícula 25 cm x 25 cm, y a partir de esa las demás mallas menos refinadas, (50cm x 50cm e 75cm x 75cm).
Concluída esta etapa de demarcación de los puntos, el elemento está listo para ser analizado a través de las mediciones de VPU. Las lecturas quedaron divididas en dos fases, la primera con un operador con mayor tiempo de experiencia con END y uso de aparato de ultrasonido, donde este realizó medidas tanto por la cara lisa como rugosa y en los respectivos puntos de la cuadrícula especificados anteriormente.
Las Figuras 3 y 4 presentan la secuencia y modo de lectura dentro de un segmento de la pared. Con los valores de VPU obtenidos, las variaciones de velocidad fueron mapeadas graficamente. Los resultados de la primera etapa hicieron posible dar buenos indicativos de que los parámetros armadura, rugosidad, tamaño de la cuadrícula y experiencia del operador demostraron tener mayor potencial con relación a la calidad de interpretación y ejecución del ensayo. Por tanto, la metodologia aplicada no pudo definir con precisión la capacidad de detección de defectos a diferentes profundidades.
En la Figura 5 se presenta la imagen obtenida a través de la combinación de parámetros que presentaron mayor capacidad de detección de vacíos. La imagen presentada es resultado del análisis de una pared sin armadura, ensayada por un operador experimentado, en una cuadrícula de 25cmx25cm en la cara lisa del elemento. Como puede ser visualizado en la figura, aun cuando tiene mejor combinación de parámetros, no se logró localizar con precisión ningún vacío introducido artificialmente.
Aparentemente, la variabilidad natural de las lecturas a lo largo de una pieza de concreto en escala real tuvo gran similitud ó superior a los desvíos de lectura causados por la presencia de los defectos inducidos (con las dimensiones y materiales utilizados, y colocados en las profundidades de esta prueba). Se cree que la presencia de los defectos no se mostró significativa en función de la reducida dimensión de los mismos con relación a la cuadrícula, asociada a la compacidad del material usado para simular los mismos (anime).
Otros ensayos realizados en el LEME-UFRGS ya habían dado indicaciones que, en cuerpos de prueba de larga escala, al contrário de lo que muchas veces se registra en probetas menores, la simulación de defectos con esferas de anime no genera tanta perturbación como el uso de segmentos de madera ó de cápsulas de aire (en forma de bolas de ping pong ó similares). Los ensayos de ese programa confirman esa tendencia.
Se procedió, entonces, a la segunda investigación, para complementar los resultados hasta entonces obtenidos. Para la realización de esta etapa fué trazada una estratégia de investigación que se basó en realizar perforaciones por la cara opuesta a la cara en análisis, permitiendo la ejecución de medidas de VPU luego de sucesivas perforaciones. Para eso se limitó la ejecución de los ensayos por el operador que obtuvo los mejores resultados en la etapa anterior, siendo estos realizados en la pared sin armadura y lecturas ejecutadas por la cara lisa.
Esa etapa tenía la intención de identificar con precisión a que profundidad una falla provocada artificialmente pudiera ser localizada a través del ensayo. La Figura 6 muestra la secuencia de algunas perforaciones y lecturas sucesivas que fueron realizadas. Para esta etapa una región del bloque sin defectos artificiales fué escogida de manera de no interferir en oós resultados.
Como se puede observar en la Figura 6, la perforación fué realizada en diversas etapas. Fué ejecutada una lectura de velocidades momentos antes de la primera perforación. Con el uso de una máquina extractor de concreto con corona diamantada de diametro interno de 150mm, fué perforado 15cm a partir de la cara rugosa en dirección da cara Lisa (cara de lectura), donde se removió el material interno del hueco, evitando cualquier interferencia que este puede causar en los resultados. Posteriormente fueron hechas lecturas de VPU en la cara opuesta.
Este procedimiento fué identico y rigurosamente respetado en las profundidades de avance de 15cm, 20cm, 25cm, 30cm, 35cm, 40cm, 50cm, 55cm y 60cm. La Figura 7 ilustra el equipo de perforación posicionado e iniciando el trabajo. Posteriormente el sellado de las perforaciones, nuevamente fueron hechas medidas de VPU, aun cuando con el hueco ya aparenté en la cara de ensayo. Como último procedimiento, el hueco fué llenado con mortero con resistencia a compresión de 4 MPa, que corresponde aproximadamente el 10% de la resistencia a la compresión del concreto utilizado, simulando de forma alternativa el vaciado de concreto con espacios o material no resistente comprimido dentro de la estructura. Así como lo realizado en lãs demás etapas, las lecturas de VPU fueron adquiridas transcurridos 28 dias del llenado del hueco con mortero. La Figura 8 muestra una de las lecturas adquiridas con 60cm de profundidad.
4. RESULTADOS
Para la realización de los ensayos se uso algunas elecciones para facilitar la interpretación de los resultados. Además de escoger de los parámetros de la cuadrícula 25x25 cm y cara lisa, las operaciones de perforación fueron realizadas en la pared sin armadura con la intención de unir las mejores configuraciones en un elemento que no tuviera interferencias como, por ejemplo, de la presencia de acero. Antes de cualquier perforación, fué realizada una lectura de calibración en todo elemento, para hacer la comparación con las lecturas obtenidas posteriormente a la perforación.
La Figura 9 muestra la imagen generada. Posteriormente a la validación de las mediciones, se comenzó a realizar los procedimientos descritos anteriormente con la perforación de un trecho, medidas de VPU, generación de la imagen, nueva perforación y así sucessivamente hasta que se llegase a la otra cara del elemento.
En esta fase se delimitó un área para las medidas de VPU correspondiente a ¼ de la superfície total. Esa decisión se dio por el hecho de abarcar apenas la región de posible interferencia que el hueco podia causar, permitiendo así un mayor número de lecturas sucesivas. La Figura 10 presenta el trecho de la pared utilizado en las medidas de VPU y el respectivo trecho de la imagen generada.
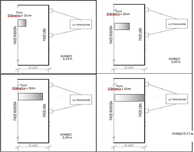
Las imágenes presentadas a partir de ese momento son siempre relativas al área delimitada en rojo. Fueron realizados pruebas iniciales para decidir cuál es la región a ser limitada sin que hubiera efectos engañosos para una correcta interpretación. Para una comparación se adoptó para todas imágenes una velocidad mínima de 3800m/s representando regiones sospechosas y una velocidad máxima de 5200 m/s simbolizando regiones homogéneas. Las Figuras 11 a 13 (12) muestran la secuencia de imágenes obtenidas y la respectiva profundidad del hueco para profundidades entre 0 y 35cm.
Podemos observar en las imágenes que hasta la profundidad de avance de 35cm no ocurren cambios significativos en la región analizada. Podemos concluir que para la situación en estudio, no fué posible detectar señales de la presencia del hueco. Las diferencias observadas son apenas oriundas de pequeñas variaciones y ruído de ensayo.
La Figura 14 muestra la secuencia de imágenes obtenidas y la respectiva profundidad del hueco para profundidades entre 40 y 50 cm. Teniendo como base el resultado obtenido en las imágenes quedó evidente una sensible reducción en lós promedios de las velocidades, principalmente en la región central, exactamente en el área donde se encuentra el hueco. A partir del análisis de estos resultados se logra visualizar indícios de la presencia del defecto.
En la Figura 15 se observan las imágenes obtenidas y la respectiva profundidad del hueco para profundidades entre 55 y 60cm. A partir de las imágenes generadas para los últimos 10cm de avance, se observca claramente la presencia del hueco, lo que demuestra la capacidad de detección de defectos a una profundidad de aproximadamente 10cm.
Como se puede verificar, la imagen generada también logró representar con relativa precisión la dimensión de ese vacío. Posteriormente culminada la etapa de perforación se realizó nuevamente una lectura completa de la pared verificando así si el comportamento presentado en las imágenes específicas de la región perforada también seria verificado en una interpolación global del elemento.
La Figura 16 presenta el resultado de esa interpolación y generación de la respectiva imagen. Analizando la imagen generada se puede observar con facilidad la conexión entre la posición real del hueco con la región de velocidades considerablemente inferiores mostrada en la imagen.
5. DISCUSIÓN
Este trabajo tuvo como objetivo analizar las influencias de los parámetros que fueron objeto de este estudio y que llevan los resultados del ensayo de VPU. Analizando y comparando los resultados obtenidos a través de los ensayos realizados, se puede concluir que la elección de la cuadrícula de lectura va a depender del tamaño del elemento y de la dimensión del defecto en su interior.
La elección según criterios de parámetros de ensayo hace posible una interpretación completa de la calidad de estructuras de concreto. A partir de las sucesivas perforaciones ejecutadas se puede concluir que no fué posible la detección a través de ondas de pulso ultrasónico con cuadrícula de 25cm para defectos en el orden de 15cm de diametro a profundidades mayores de 30cm.
La experiencia del operador se mostró la variable más importante y significativa en el análisis, ya que la falta de experiencia del mismo puede acarrear interpretaciones erróneas, teniendo en cuenta también que el operador es indispesable para la realización de los ensayos.
Defectos existentes a una profundidad de 10 a 30cm afectan sensiblemente los promedios de las velocidades de las regiones próximas a el, pudiendo llevar a una confusión en la localización con regiones sin defectos. Bien como fallas presentes a profundidades de hasta 10cm no tiene su localización y dimensión claramente indicadas por las imágenes gráficas ofrecidas por el software.
6. CONCLUSIONES
El uso de ensayos de VPU cada vez se difunde más en el área de la Ingeniería Civil. El estudio realizado demuestra como el ensayo de VPU puede ser utilizado para el análisis de estructuras, viendo que los datos obtenidos permiten verificar, por ejemplo, la presencia de cuerpos extraños y vacíos. El ensayo de VPU esbastante sensible a variaciones de homogeneidad y densidad. Una ventaja importante de los ensayos de VPU es que pueden ser aplicados, sin causar daños, a estructuras en uso, aspecto extremadamente importante para los diagnósticos es la definición de estratégias de intervención.
La aplicación del ensayo de VPU está en fase de popularización de su uso en estructuras de concreto por presentar diversas ventajas para la evaluación de las estructuras, por tanto, necesita de un conocimiento en su uso y operación proporcional a esse uso por medio técnico.
El estudio indica que ensayos de VPU son sensibles a variaciones de homogeneidad y densidad, pudiendo, por tanto, ofrecer datos importantes para la toma de decisión com respecto a las condiciones de estructuras de concreto. Es decir, se puede concluir que, mediante la ejecución de ensayos de VPU es posible contribuir con el control de la calidad de las estructuras de concreto.
A partir de los resultados obtenidos en lss sucesivas perforaciones se puede concluir que:
(a) No fue posible la detección a través de ondas de pulso ultrasónico con cuadrícula de 25cm para defectos en el orden de 15cm de diametro a profundidades mayores de 30cm;
(b) Defectos existentes a una profundidad de 10 a 30cm afectan sensiblemente los promedios de las velocidades de las regiones próximas a el, pudiendo llevar a una confusión en la localización con regiones sin defectos;
(c) Fallas presentes a profundidades de hasta 10cm no tiene su localización y dimensión claramente indicadas por las imágenes gráficas ofrecidas por el software y
(d La elección de los parámetros de ensayos es un factor determinante para que se tenga una interpretación correcta y sin errores.
De esta forma, los estudios realizados confirman la hipótesis de que los ensayos de VPU tienen gran potencial de uso en los casos de inspección de estructuras. Su uso permite obtener indicaciones importantes para la caracterización del concreto, bien como datos sobre la homogeneidad y la calidad de la estructura. Los ensayos de VPU pueden ser utiles en la toma de decisión en el establecimiento de estrategias de intervención, dado que la falta de información podrá aumentar el alcance y complejidad de las intervenciones previstas, aumentando costos ó generando transtornos adicionales para los usuarios.










texto en 


















