Introducción
El sitio arqueológico de Xochicalco se encuentra emplazado en una elevación dentro de un sistema de cerros ubicados al noroeste del actual estado de Morelos. La elección del terreno sobre el que se fundó el centro urbano se fundamenta en la inestabilidad producida por el debilitamiento del estado teotihuacano alrededor del 650 n.e. (Cowgill 1996: 326; Manzanilla 2009; Rattray 2001: 412; Sugiyama y Cabrera 2003: 43), momento que dio inicio a lo que conocemos como periodo Epiclásico. Este periodo, reconocido como de recomposición social, política y económica, se caracterizó por una alta movilidad poblacional (Manzanilla 2005), por un cambio en los patrones de asentamiento (Diehl 1989: 15; García Cook 1996: 75-77; Parsons y Sugiura 2012: 310-311; Serra y Lazcano 2005), así como por el surgimiento de nuevos centros con características militaristas y de competencia (Hirth 1989, 2000).
Se parte de la idea de que Xochicalco se estableció como una sociedad de tipo clasista inicial (Alvarado 2019), caracterizada, entre otros aspectos, por la presencia de un sistema institucional que fungió como regulador de la coerción ideológica y militar que le permitía enajenar los excedentes productivos para el sustento de la clase dominante (Bate 2014: 261-262; Bate y Gándara 1991: 29). Dicho sistema dictó las formas en que se relacionaron los individuos y los grupos sociales que constituyeron cada una de las clases. Pero no solo eso, sino que la organización y el emplazamiento de los entornos construidos fueron, en parte, el reflejo mismo de los intereses institucionales, mismos que buscaban mantener y reproducir las formas de conducta del ser social, justificando así aquel ordenamiento.
Pero ¿cuál o cuáles fueron las causas y consecuencias de la organización de los entornos construidos en Xochicalco? Para dar respuesta a la pregunta y entender las implicaciones del espacio social en la conformación del centro urbano para su última fase de ocupación, haré uso de algunas de las herramientas conceptuales y metodológicas de la sintaxis espacial (Bermejo 2009: 50; Hillier et al. 1987), con el objetivo de vincular los entornos construidos como elementos resultantes de las relaciones sociales. Al respecto, se ha de destacar que han sido pocos los trabajos en los que utilizan este tipo de análisis en el estudio de la organización espacial y arquitectónica en Mesoamérica con el objetivo de evaluar las formas en que el entorno construido dicta las prácticas sociales (Hohmann-Vogrin 2006; Liendo 2003; Morton et al. 2012; Robb 2007; Stockett 2005).
Los entornos construidos de Xochicalco
Si bien es cierto que uno de los posibles propósitos de fundar la ciudad sobre un cerro fue por razones defensivas derivadas de la situación que imperaba alrededor del 650 n.e., la accidentada topografía facilitó, a la vez que representó un obstáculo, el ordenamiento de los entornos. Esta empresa requirió la inversión de una gran fuerza de trabajo para transformar el terreno y adecuarlo para el emplazamiento de plazas, canchas de juegos de pelota, templos y otros edificios de orden administrativo. Para ello, se crearon terrazas sobre las laderas siguiendo el contorno natural de la elevación (Hirth et al. 2000: 200) y se generaron líneas de conexión entre ellas. Esta adaptación del terreno, junto con el establecimiento de un sistema de manejo de agua (drenajes, depósitos de agua y represas) (Alvarado et al. 2012) y una red de circulación (calzadas, rampas y plazas), formó parte de la infraestructura urbana de la ciudad, misma que requirió de un alto grado de planeación y mano de obra tanto para su construcción como para su mantenimiento (Smith 2016).
Los datos empíricos obtenidos en las diversas temporadas de campo en Xochicalco, desde 1934 hasta el 2009 (Alvarado 2018), revelan solo una parte del proceso histórico ocurrido durante su ocupación (670-1065 n.e.), específicamente al momento de su caída. Y, aunque es evidente que el centro urbano que actualmente observamos es resultado de una serie de transformaciones que fueron generándose a la par de los cambios en las relaciones sociales desde el 670 n.e. y hasta su abandono, en este artículo únicamente se hará referencia a los datos de la última etapa de ocupación de la ciudad.
En primera instancia, se ha de señalar que los xochicalcas definieron bien sus fronteras sociales con el muro de contención de la primera terraza de cinco metros de altura que, además de su muy probable función defensiva, marcó el límite del centro urbano (Figura 1). Esta distinción entre el afuera y el adentro se vio reforzada mediante la presencia de ciertos elementos arquitectónicos que fungieron como puntos de control para el acceso a la ciudad, los denominados Bastiones (Alvarado y Garza 2010; González et al. 1995). A ellos se llegaba a través de los caminos externos y, una vez que eran cruzados, las calzadas eran los medios de canalización hacia el interior.

(modificado por Claudia Alvarado para Proyecto Xochicalco)
Figura 1 Plano de Loma Sur con el muro de contención delimitando la primera terraza que sostiene, entre otros edificios, a los Bastiones
Comunicación extramuros
Las primeras referencias a los caminos pavimentados de Xochicalco las realizó José Alzate en 1791, quién describió que aún existían los vestigios de cuatro calzadas orientadas a cada uno de los puntos cardinales, las cuales conducían a la “fábrica” de Xochicalco. Posteriormente, Renato de Perdreauville (1835) y Charles Latrobe (1836) reportaron y describieron las calzadas pavimentadas que llevaban a Xochicalco a lo largo de barrancas y planicies.
En 1966, Norberto González y Silvia Garza, bajo la dirección de Jaime Litvak y Pedro Armillas, expusieron en su reporte de prácticas de campo de la Escuela Nacional de Antropología e Historia la presencia de caminos en las afueras de Xochicalco (Litvak 1970: 73). Sin embargo, la mayor contribución para el reconocimiento de estos caminos y su extensión ha sido el Proyecto Cartográfico Xochicalco de 1978, dirigido por Kenneth Hirth (s.f.). Mediante un recorrido intensivo de superficie que cubrió un área de 15 km2, Hirth logró identificar fuera de las inmediaciones del Cerro Xochicalco al menos tres caminos (Hirth 1984: 579, 1991: 218, 2000: 229), mismos que consideró vías públicas de comunicación de un sistema que operaba a nivel regional.
Por su parte, el Proyecto Especial Xochicalco reconoció la existencia de un total de cuatro caminos (Alvarado y Garza 2010), de aproximadamente once metros de ancho, pavimentados con piedras calizas burdamente cortadas (Hirth 2000: 219) (Figura 2). Éstos formaron parte de un sistema integral de vías de comunicación entre la ciudad y otros asentamientos que pudieron haber estado bajo la hegemonía del poder centralizador de Xochicalco. Es probable que estos caminos fueran utilizados tanto para el transporte de productos y bienes mercados por y para la ciudad, como para enfatizar el poder del mayor centro político y religioso de la región durante el Epiclásico (Hirth 1982: 324, 2000: 230).

(modificada sobre fotografía de Compañía Mexicana de Aerofoto)
Figura 2 Vista aérea con la indicación de los caminos (líneas) y bastiones (puntos) fuera del Cerro Xochicalco.
Más allá de su posible función, destaca la cantidad de fuerza de trabajo invertida para la obtención de la materia prima, su acarreo, el proceso de corte de las losas y, en el muy probable caso de que estuvieran estucados, la producción de la cal y su colocación en extensiones de, por lo menos, siete kilómetros. Aunado a lo anterior, es importante considerar aquella fuerza de trabajo empleada tanto para su mantenimiento como para su conservación.
A pesar de que las relaciones interregionales y la transportación de bienes y de productos no dependían de rutas pavimentadas, la red de comunicación que se extiende desde y hacia Xochicalco debió haber tenido motivos más allá de los utilitarios. Si bien la información sobre estos caminos y de los sitios alrededor del asentamiento es escasa e incompleta, se puede inferir que su presencia tuvo que ver con el papel central y la manifestación de poder que tuvo el centro urbano sobre una región cuya magnitud aún es imprecisa.
Comunicación y emplazamientos intramuros
La verticalidad del terreno dictó la organización de las vías de comunicación al interior del muro perimetral; rampas, escaleras y calzadas encauzaban el flujo de personas, obligándolas a pasar por áreas definidas hacia los lugares concebidos para concentrar y regular su circulación. Hasta ahora, se han podido identificar cuatro calzadas que formaron parte del sistema de circulación del sitio: una al sur, dos al oriente y una al suroeste (Figura 3). La marcada pendiente que presenta el cerro tanto al norte como al noroeste no permitió, ni requirió, que se construyeran accesos en aquellos sectores.

(modificada sobre fotografía de Compañía Mexicana de Aerofoto)
Figura 3 Vista aérea con las calzadas (líneas) indicadas en el texto. El punto 4 también refiere al cerro La Malinche.
Hacia el sur se localiza la única entrada a la ciudad que ha sido excavada (Figura 1); por lo mismo, la información obtenida durante las labores de exploración dirigidas por Norberto González en 1984 y 1986 llevó a confirmar la presencia de la calzada que conectaba a los Bastiones, en la denominada Loma Sur (Figuras 1 y 3), con la Plaza de la Estela de los Dos Glifos en el área central de Xochicalco (González et al. 1995) (Figura 4). A esta calzada se le une otra que fue explorada durante los trabajos de Eduardo Noguera (1941), misma que conecta con el cerro de La Malinche ubicado en la parte suroeste de la ciudad (Figura 3).

(modificado por Claudia Alvarado para Proyecto Xochicalco)
Figura 4 Plano del área nuclear de Xochicalco.
Por el oriente se encuentra la calzada que originalmente provenía de los bastiones ubicados en la parte baja de la ladera oriental del cerro La Bodega, mismos que fungían como puntos de control del camino procedente de la actual población de Acatlipa, Mor. (Alvarado y Garza 2010: 140-141; Hirth s.f: 326-328.;), ubicada a siete kilómetros de Xochicalco en línea recta (Figuras 2 y 3). Una parte de la calzada, marcada con el número 2 en la Figura 3, fue liberada durante la temporada 1993-1994 bajo la dirección de González y habilitada para comunicar el Museo de Sitio con la Zona Arqueológica. La calzada ingresa al centro urbano cruzando la plaza del Sector L hasta el lugar desde donde se desplantaba la escalinata que conduce al Juego de Pelota Este (Figura 4). Sin embargo, poco antes de cruzar el foso que flanquea el lado oriente del cerro Xochicalco, se desprende una calzada más que lleva hacia la cima de La Bodega (Figura 3).
Las calzadas de Xochicalco, conformadas por lajas irregulares de piedras calizas que fueron estucadas, alcanzan entre los tres y cinco metros de ancho. Algunas de estas vías, como la de Loma Sur y la que conduce a la cima de La Bodega, presentaron muretes de piedra que flanqueaban sus costados (Hirth 1995: 241) (Figura 5). Es muy probable que estos muros bajos, de entre 50 y 60 centrímetros de alto, funcionaran como elementos restrictivos de circulación, evitando de esta manera el paso a áreas no públicas como las zonas habitacionales.

(fotografía por Claudia Alvarado)
Figura 5 Calzada que asciende al Cerro La Bodega, se observan los muretes laterales que la flanquean.
La complicada topografía que las calzadas debieron sortear para conectar las distancias requirió la construcción de rampas y escaleras que complementaran la unión de los distintos niveles en los que se encontraban construidos los entornos. Al respecto y asociado a estas calzadas, se ha identificado un patrón arquitectónico constituido por una escalinata y un pórtico que anteceden el acceso a las plazas. Este ordenamiento de elementos constructivos se observa en áreas estratégicas del asentamiento, como el trayecto (Sector I) que va hacia la Plaza Principal y aquél (Sector E) que va hacia el Sector B, así como los propios accesos a la Plaza de la Estela de los Dos Glifos (en adelante PEDG) y a la Plaza del Sector L (Figura 4).
Las plazas fueron áreas fundamentales para la integración de las vías de comunicación y puntos neurálgicos para el desenvolvimiento de las relaciones sociales generadas dentro del espacio social, ya que además de gestionar la circulación hacia otras áreas, éstas fungieron como puntos de reuniones tanto públicas y religiosas, como de orden político y militar (Hirth 2000: 184; Inomata y Tsukamoto 2014: 3; Ringle 2014: 168-169). Los ejemplos más claros identificados en Xochicalco hasta ahora son las ya citadas PEDG y la Plaza Principal. Estas áreas, sin excepción, estaban precedidas por pórticos que vigilaban y controlaban el acceso (Alvarado y Garza 2010; González et al. 2008; Salomón y Garza 1994).
La PEDG está constituida, además de los dos pórticos señalados, por cuatro edificios tipo templo y un altar con la estela a la que debe su nombre (Sáenz 1967: 11-12). De entre los templos, destaca la Gran Pirámide, el segundo edificio con el mayor volumen construido de la ciudad. Entre la evidencia recuperada por el Proyecto Especial Xochicalco durante su intervención en la temporada 1993-1994, está una máscara de Tláloc conformada por una serie de excéntricos de obsidiana que ha permitido inferir que este templo estuvo dedicado al culto de dicha deidad (Palavicini y Garza 2004).
Por su parte, la Plaza Principal alberga la mayor cantidad de estructuras, entre las que destacan la Pirámide de las Serpientes Emplumadas, la Pirámide Gemela, la Pirámide de las Estelas, la Estructura G6 y la Acrópolis (Figura 4). Todos estos edificios han sido vinculados con actividades propias de las instituciones ideológica, militar, política y administrativa (Alvarado 2019).
La Pirámide de las Serpientes Emplumadas ha sido el edificio más reconocido y al que más se ha hecho referencia (Alvarado 2018) y, aunque todavía no hay un consenso en el significado de sus grabados, se le reconoce como un monumento con un simbolismo de orden político/económico/ritual (Berlo 1989; Hirth 2000: 255; López Austin y López Luján 2017; Nagao 1989; Testard 2014: 508) y militar, en tanto que representa a la deidad tutelar de la Serpiente Emplumada como símbolo de autoridad de una clase hegemónica guerrera (Smith 2000: 57). En cuanto a las pirámides Gemela y de las Estelas, ambas han sido consideradas como evidencia de la presencia de un gobierno dual para la última fase de ocupación de la ciudad. La primera por sus semejanzas arquitectónicas con la Pirámide de las Serpientes Emplumadas (Alvarado 2015: 181; González et al. 2008); la segunda por la presencia de las estelas que le dan nombre al edificio y que, según se ha propuesto, representan a los dignatarios de Xochicalco (Palavicini 2011; Palavicini y Garza 2003). A la Estructura G6 se le ha atribuido una función administrativa debido a la alta presencia de objetos de piedra verde, tales como figurillas y cuentas (Alvarado et al. 2012; Garza et al. 2016).
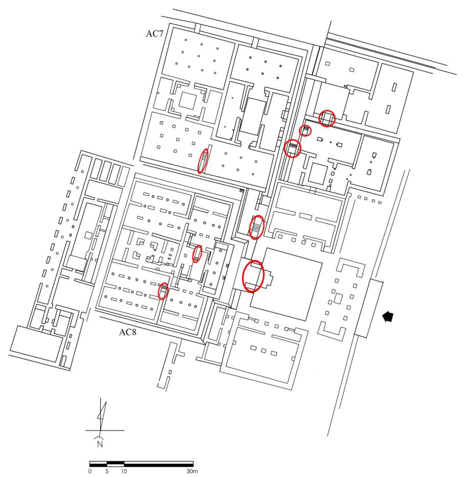
La Acrópolis es un complejo arquitectónico constituido por 12 estructuras intercomunicadas a través de pasillos y escaleras (Figura 6). Cada uno de los edificios presenta el mismo orden espacial: un patio rodeado de habitaciones y solo uno de ellos conformado por dos niveles (Ac8). Los resultados del estudio de los materiales arqueológicos recuperados en las temporadas 1993-1994, 2005, 2006 y 2007, refieren a actividades propias del sistema institucional (Alvarado 2020). Entre ellos, destaca la evidencia de procesos de producción especializados en materiales alóctonos como la concha (Melgar 2009), que una vez terminados fueron distribuidos y utilizados en lugares evidentemente reservados para la clase hegemónica, como en el entierro hallado en la Pirámide de las Serpientes Emplumadas (Melgar 2010). Además, se identificaron áreas específicas para el almacenamiento de alimentos y se registraron otros materiales vinculados al poder centralizado. Esta información, en concordancia con la ubicación, las dimensiones, el carácter multifuncional, el acceso limitado y la privacidad, nos ha llevado a identificar el complejo como la institución palaciega de la ciudad (Alvarado 2015, 2020; Alvarado et al. 2012; Garza et al. 2016).

(modificado por Claudia Alvarado para Proyecto Xochicalco)
Figura 6 Plano de La Acrópolis. Se indican las escaleras de comunicación del complejo.
Además, el sistema de circulación de la Acrópolis es un indicador del nivel de complejidad, control y restricción de la comunicación desde el exterior, así como dentro del mismo entorno. El ingreso al conjunto se vio limitado a una sola entrada desde la Plaza Principal por medio de una escalinata, seguida de un pórtico que fungió como punto de control. Hacia el interior, las doce estructuras estuvieron articuladas unas con otras por medio de escaleras, pasillos y pasajes; incluso los techos jugaron un papel trascendental en la comunicación del lugar (Figura 6) (Alvarado 2015).
El análisis de Xochicalco mediante la sintaxis espacial
La sintaxis espacial, desarrollada por Bill Hillier y Julienne Hanson (1984) refiere a un conjunto de técnicas analíticas utilizadas para representar, cuantificar e interpretar la configuración espacial tanto de edificios como de asentamientos, con la finalidad de entender las formas en las que se vinculan y organizan los entornos a través de su registro como elementos derivados de las relaciones sociales (Bermejo 2009: 50; Hillier et al. 1987). Uno de los componentes teóricos de la sintaxis espacial se centra en la importancia del desplazamiento entre los entornos construidos y la relevancia de los grados de accesibilidad (Smith 2011: 176; Stockett 2005), aspectos que permiten inferir comportamientos derivados de las dinámicas sociales.
Entre las técnicas utilizadas en la sintaxis espacial para representar la configuración de un edificio o de una ciudad se encuentra la gráfica justificada (j-graph) (Hillier et al. 1987; Hillier y Vaughan 2007) o de accesibilidad1 (Bermejo 2015; Moore 1996). En este tipo de gráficas se toma como punto de origen un entorno determinado y se coloca el resto de los elementos alineados sobre ese punto inicial de acuerdo con su permeabilidad (Hillier y Hanson 1984), es decir, con referencia a los puntos de entrada, hacia y desde los entornos, los cuales dictan el movimiento.
Con estas gráficas se puede determinar el nivel de integración de los elementos constitutivos del área analizada de acuerdo con el número de entornos por los que se tiene que cruzar para llegar a otro punto desde el origen, propiedad conocida como profundidad. Los niveles de profundidad expresan qué tan directa o indirectamente están integrados los entornos entre ellos; un lugar tendrá una profundidad de uno si es directamente accesible, de dos si es necesario pasar por un lugar intermedio, de tres si hay que pasar por dos lugares, etc. (Bafna 2003; Hillier et al. 1987; Hillier et al. 1993; Morton et al. 2012). Entre más profunda es el área, su nivel de privacidad es más elevado, implicando que quienes pueden tener acceso a los entornos más insertos son aquellos con mayor rango en la escala social.
Otra propiedad es la elección, que tiene que ver con la posibilidad de elegir rutas alternas. En la gráfica, si la topología es en forma de árbol (simétrica) solo habrá una ruta a seguir y querrá decir que no es distribuida; si la gráfica es en forma de anillos (no simétrica), habrá más de una ruta, implicando una mayor distribución (Hillier y Hanson 1984; Hillier et al. 1987). Esta propiedad permite determinar la accesibilidad a determinadas áreas, al considerar rutas específicas y límites establecidos como puntos de segregación o articulación para la circulación hacia lugares públicos o privados.
Por ello, el uso de la gráfica de accesibilidad facilita el reconocimiento del nivel de integración y segregación de los entornos, ya que simplifica la identificación de jerarquías para asociarlas con el despliegue de las relaciones sociales referidas; asimismo, permite establecer la configuración espacial entendida como la correspondencia simultánea entre las partes que conforman el todo (Hillier y Vaughan 2007).
La gráfica de accesibilidad de Xochicalco incluye las plazas como nodos de integración, los pórticos como puntos de control de acceso y diferentes tipos de edificios de acuerdo con sus funciones. Los niveles de profundidad son indicados por la escala numérica localizada del lado derecho de la gráfica (Figura 7); los entornos más superficiales (con un número bajo de profundidad) refieren a lugares con mayor nivel de congregación, más integrados; mientras que los entornos con mayor nivel de profundidad son las áreas segregadas donde se desarrollan las relaciones sociales privadas o restringidas.
En este trabajo también se toman en cuenta criterios que superan el nivel planimétrico utilizado en la sintaxis espacial, tales como el volumen constructivo, la visibilidad y la verticalidad, aspectos que cobran relevancia y dotan de significado a los entornos construidos (Moore 1996). En este sentido, la prominencia de su ubicación, aunado a su grado de accesibilidad y su visibilidad, tanto por su ubicación como por su dimensión, coadyuvan a sustentar la hipótesis de que el centro urbano siguió las pautas de un sistema institucionalizado que buscaba mantener las formas de conducta de acuerdo con los intereses de la clase hegemónica.
Análisis y discusión
El punto de origen de la gráfica que representa la configuración espacial de Xochicalco (Figura 7) corresponde a dos entradas a la ciudad, la del sur y la del oriente. De tal forma que la organización del asentamiento se divide en dos gráficas que se observan independientes, con un único punto de interconexión abordado más adelante.
A pesar de que todavía existen vacíos de información, este texto emplea los datos empíricos obtenidos hasta ahora, enfocándose en la parte ya liberada. Por lo mismo, el nivel uno de la gráfica incluye todas las terrazas inferiores de Loma Sur, mismas que se han podido identificar como habitacionales y áreas de producción de artefactos de obsidiana (Hirth 2000: 165). Se infiere que estos lugares no eran públicos, como lo sugeriría un nivel de superficialidad bajo, sino que se trata de entornos privados cuya ubicación refiere a una posición intermedia en la jerarquía del espacio social. El trayecto obligado para alcanzar la PEDG fue la calzada que cruzó aquellas terrazas inferiores hasta alcanzar la escalinata que da acceso a la terraza que ocupa la plaza.
Del lado oriente, los datos son todavía más limitados. Lo único que se conoce es la calzada que sale del actual Museo de Sitio y su conexión con la Plaza del Sector L. Por lo mismo, se parte de ambas plazas, precedidas por pórticos, como áreas con nivel de profundidad cuatro. En la escala numérica, este nivel se considera superficial en tanto que el número máximo de profundidad obtenido es de 13.
Desde el Sector L se llega al Juego de Pelota Este en el Sector K, al Sector E y al Sector B; este último presenta el mayor nivel de profundidad desde el acceso oriente. No se puede dejar de mencionar que, en el Sector B, se ubica el único templo orientado hacia el norte y el temazcal de mayor tamaño localizado en la ciudad, vinculado al Juego de Pelota Norte. La única interconexión existente entre esta primera ruta y la que procede de Loma Sur se presenta entre los niveles de profundidad cinco y seis, es decir, entre el Sector E y la Gran Pirámide. Por otro lado, llama la atención el nivel de verticalidad de estos sectores con relación a aquellos correspondientes a la ruta opuesta. En la Figura 7 se presenta el corte de la ciudad en eje sur-norte, mostrando las diferencias en la altura de las áreas citadas. Así, los sectores L y E se ubican en niveles de terrazas más bajos que cualquiera de los sectores con mayor nivel de profundidad.
Por su parte, la PEDG se asume como un entorno de integración, pues contiene el mayor número de templos en la ciudad, entre los que destaca la Gran Pirámide (Figura 8). Al respecto, se ha de apuntar que esta estructura se distingue, tanto por ser el edificio de mayor tamaño y altura, como por tener el volumen construido más grande de todo el asentamiento (~8,200 m3), después de la Acrópolis (~8,500 m3). El hecho de que el camino exterior procedente del sur de la ciudad se una con la calzada que conduce hacia la plaza citada, llevó a Hirth (2000: 228) a destacar la importancia que debieron tener las ceremonias ahí reproducidas en la vida cívica y religiosa de la población regional. Asimismo, es importante señalar la trascendencia visual que tiene la Gran Pirámide, no solo desde el interior de la ciudad, sino desde distancias fuera de los límites del asentamiento; ya que el tamaño de la construcción y su visibilidad exhortan a acercarse a él, mostrándose ante el visitante como el punto de encuentro para la celebración de actividades de carácter público y ritual. Así, el emplazamiento de la Gran Pirámide concuerda con la idea de que la arquitectura visible a grandes distancias sirvió para acentuar la autoridad dominante y como un mecanismo de adoctrinamiento, control de la población y propaganda (DeMarrais et al.1996: 18).

(fotografía por Claudia Alvarado)
Figura 8 Plaza de la Estela de los Dos Glifos con la Gran Pirámide al norte.
En contraste, para poder llegar a la Plaza Principal es necesario cruzar la PEDG en dirección al noroeste y atravesar los tres pórticos que forman parte del patrón arquitectónico localizado en el Sector I (Figura 4). Éste es el único acceso hacia la plaza y es el área en donde, estratégicamente, cambia la orientación de una plaza a la otra. El despliegue de la Plaza Principal en uno de los puntos más elevados del cerro, su nula visibilidad desde terrazas inferiores y su ubicación en el nivel de profundidad 10 en la gráfica justificada (Figura 7), conducen a reconocerla como uno de los entornos más segregados, resguardos y restringidos de la ciudad. Los que tenían acceso a ella debieron mantener relaciones sociales más estrechas con los grupos sociales constitutivos de la clase hegemónica. Y es que, como ya se mencionó párrafos arriba, este entorno comprende los edificios más emblemáticos de los aparatos gubernamental, administrativo e ideológico del sistema institucional.
Por lo anterior, se considera que el contenido, la ubicación y el acceso hacia la Plaza Principal y los edificios que albergó estuvieron determinados por las relaciones sociales establecidas para ejercer la capacidad coercitiva de la clase dominante xochicalca. Las ceremonias realizadas en la Plaza Principal estaban acotadas a un público selecto, en comparación con la PEDG.
Ahora bien, el nivel de profundidad más elevado dentro de la gráfica justificada lo ocupa la Acrópolis, lo que denota que era el área más segregada y restringida del centro urbano. La situación estratégica, así como el sistema de circulación al interior del conjunto son aspectos fundamentales para comprender el tipo de relaciones sociales ahí desplegadas. El aprovechamiento del terreno sobre el cual se levantó el complejo palaciego se fue transformando, siguiendo las pautas generadas por los cambios que ocurrieron, tanto en las relaciones sociales constitutivas del espacio social, como en los procesos de producción (Alvarado 2015).
La limitada comunicación (Figura 6) existente al interior del complejo revela un alto grado de privacidad y resguardo de las actividades practicadas en su interior y de los procesos económicos y bienes de prestigio que ahí se almacenaban (Garza et al. 2016). De tal forma que la Acrópolis fungió como el palacio donde la presencia de áreas de producción adscrita de objetos con alto valor de uso y cambio requirieron de espacios amplios, áreas abiertas y, por supuesto, un alto nivel de resguardo con acceso controlado y circulación restringida (Alvarado 2020; Alvarado et al. 2012).
Finalmente, vale la pena retomar el punto de la infraestructura urbana. Dentro de ésta, es importante tomar en cuenta la evidencia material, como los drenajes, las calzadas, el sistema defensivo, los muros de contención y las terrazas, así como aquellos servicios intangibles pero necesarios para la subsistencia de una ciudad: colecta de basura, limpieza de desechos y el abastecimiento de alimento entre otros (Smith 2016). Todos ellos, evidencias del poder centralizado e institucionalizado de un centro urbano, claramente manifestado en los entornos construidos.
Consideraciones finales
El diseño del centro urbano de Xochicalco sufrió una serie de transformaciones a lo largo de casi 500 años de existencia, por lo que una planificación urbana fue indispensable para el diseño y aprovechamiento de los entornos construidos en donde se llevarían a cabo las relaciones sociales y los procesos de producción insertos dentro de su espacio social.
Los sistemas de circulación y comunicación, además de conectar y articular los distintos niveles de terrazas y sectores, también actuaron como elementos arquitectónicos condicionantes para el desplazamiento. Las restricciones en estos sistemas han sugerido la presencia de un poder coercitivo al forzar la exclusión a entornos específicos y mantener áreas más accesibles y con menores restricciones en las que las divisiones sociales no eran tan estrictas (Moore 1996: 183).
Un análisis futuro de la extensión de los caminos permitirá establecer las dimensiones y cualidades de las relaciones inter-sitios, indicando los niveles de centralización y dominio regional que tuvo la ciudad. Aun así, la fuerza de trabajo invertida en una obra constructiva cuya existencia no era imperiosa para la comunicación o el traslado de bienes, permite inferir que su cometido principal era poner de manifiesto la autoridad, el poder y el dominio del centro político, administrativo, militar y religioso, así como de su clase dominante.
En cuanto al sistema de circulación intramuros, el análisis de los datos muestra que éste integró de manera eficiente los entornos construidos en concordancia con los intereses propios de la clase hegemónica. El control del movimiento de un lugar a otro dentro de la ciudad, limitándolo y supervisándolo por diferentes medios como calzadas, pórticos y entradas restringidas, desde la Loma Sur hasta la Acrópolis, evidencia una clara muestra del nivel de jerarquización y segregación de los entornos. Asimismo, y aunado a lo anterior, la verticalidad y la organización reflejada en los niveles de profundidad y superficialidad de los distintos sectores apuntan hacia una forma de control basada en el interés de la clase dominante por mantener su autoridad.
La sociedad de tipo clasista inicial secundaria bajo la cual se estableció Xochicalco desde 670 n.e., en una elevación de aproximadamente 120 metros sobre el nivel del valle circundante, manifiesta la complejidad de las relaciones sociales. La dinámica, la reproducción y el mantenimiento de esas relaciones requirió de entornos construidos que cubrieran las exigencias del espacio social, dentro del cual, el sistema de circulación y comunicación favoreció el control, la dirección, el ordenamiento, el comportamiento y el flujo de individuos, locales o foráneos, dentro de la ciudad. Esta circulación siguió básicamente un eje vertical que permitía subir de una terraza a otra con diversificaciones horizontales que posibilitaron la circulación entre los espacios ubicados en una misma terraza. Las plazas, por supuesto, además de fungir como elementos de integración, desplazamiento y distribución del flujo circulatorio hacia otras áreas, fueron al mismo tiempo elementos condicionantes para estas mismas actividades. Una de las grandes diferencias entre la Plaza Principal y la PEDG, además de sus niveles de profundidad y verticalidad, es la presencia de dos de los templos más importantes del asentamiento en cada una de ellas: la Pirámide de las Serpientes Emplumadas y la Gran Pirámide, respectivamente. En ellas, las disimilitudes son contundentes: la primera con indicios de haber sido un monumento con un simbolismo de orden político/económico/ritual/militar reservado para un grupo selecto de entendidos; y la segunda con un tamaño elocuente y con artefactos que han llevado a asociarla al dios Tláloc, que tenía el objetivo de alcanzar audiencias más generales.
Sin embargo, la máxima representación del poder de coerción, dado su carácter restrictivo en acceso y circulación, fue la Acrópolis. Las limitadas áreas que actuaron como vías de comunicación entre las estructuras que conformaron el complejo arquitectónico exponen la condición limitante para su acceso, lo cual, en conjunto con los materiales hallados en el interior de esta institución palaciega, refleja la importancia de los tipos de relaciones sociales y procesos de producción llevados a cabo en su interior.
Las características urbanas de Xochicalco, expuestas y analizadas a través de las herramientas de la sintaxis espacial, corroboran la propuesta de que la clase hegemónica fue la encargada de determinar las condiciones de circulación y las normas de relación entre los individuos y los grupos sociales, a través de la limitación, el control y la restricción de accesos. Así, se establece que las causas del ordenamiento y el diseño del centro urbano de Xochicalco se fundamentaron en los intereses de una clase hegemónica y coercitiva, con el fin de mantener el sistema social que le daba sustento.










nueva página del texto (beta)



