INTRODUCCIÓN
La ingeniería sísmica afronta el desafío constante de garantizar la seguridad y funcionalidad de estructuras importantes ante eventos sísmicos de gran intensidad. Las experiencias derivadas de sismos devastadores, junto con los continuos avances en investigación, impulsan la actualización sistemática de los códigos de diseño estructural para incrementar la resiliencia y protección de las edificaciones. Los más recientes lineamientos de diseño sísmico de la Ciudad de México (NTC-DS) ha experimentado un cambio significativo en su versión 2023 (Gaceta de la Ciudad de la Ciudad de México, 2023), donde se introducen modificaciones en la filosofía de diseño para estructuras esenciales. Este nuevo enfoque contrasta notablemente con la versión 2020 (Gaceta Oficial de la Ciudad de México, 2020) en la cual el diseño de estructuras esenciales se realizaba empleando un factor de importancia que incrementaba 1.5 o 1.3 veces las ordenadas del espectro de diseño, el cual se reducía mediante factores asociados a la ductilidad y sobre-resistencia estructural, siguiendo el enfoque tradicional ampliamente utilizado en diversos códigos internacionales (The European Union per Regulation 305/2011, 2004) (American Society of Civil Engineers, 2021). La actual normativa mexicana NTC-DS-2023 elimina el uso del factor de importancia y establece que las estructuras deben satisfacer el nivel de desempeño de Ocupación Inmediata (OI), así como un nivel de Seguridad de Vida (SV). El nivel OI, que generalmente rige el diseño, busca minimizar el daño estructural mediante dos estrategias fundamentales: el control de la distorsión máxima de entrepiso, y la utilización de un espectro de diseño sísmico asociado a un periodo de retorno de al menos 250 años. Este espectro se reduce posteriormente únicamente por una fracción de la sobre-resistencia. La normativa NTC-DS-2023 establece que la distorsión de diseño para el cumplimiento del nivel de desempeño de OI (δOI) debe limitarse a valores de 0.0075 o 0.005, según el sistema estructural empleado; sin embargo, no hay investigaciones que fundamenten la selección de estos valores límite. Para el nivel de desempeño SV se utiliza un periodo de retorno de 450 años.
Los eventos sísmicos recientes, incluyendo los ocurridos en Nepal (2015), Italia (2016), México (2017) y Turquía (2023) (Chen et al., 2015; Di Ludovico et al., 2019; Di Ludovico et al., 2019; Singh et al., 2018) han evidenciado la particular vulnerabilidad de las infraestructuras educativas ante desastres naturales, impulsando investigaciones orientadas a mejorar su resiliencia. Las escuelas trascienden su función educativa primaria al convertirse en refugios temporales y centros comunitarios durante emergencias, lo que enfatiza la importancia crítica de implementar estrategias efectivas para la mitigación de daños y reducción de riesgos (De León y Donaji, 2020). En respuesta a esta necesidad, la comunidad científica ha desarrollado diversos enfoques de investigación.
El análisis costo-beneficio ha sido uno de los enfoques más desarrollados para determinar estrategias óptimas de mitigación (Jaimes y Niño, 2017), el cual se ha complementado con la implementación de metodologías de resiliencia basadas en modelos como el incluido en el FEMA P-58 (Koohfallah et al., 2024) y el desarrollo de técnicas de rehabilitación adaptadas a condiciones locales específicas (Anelli, Santa-Cruz, Vona, Tarque, y Laterza, 2018) (De León et al., 2023) (De León y Donaji, 2020) (De León y Garcia-Manjarrez, 2021). La evolución natural de estos métodos ha llevado a la incorporación de herramientas innovadoras, particularmente las técnicas de inteligencia artificial, que permiten optimizar tanto los análisis costo-beneficio como la implementación de las metodologías de resiliencia (Zain, Dackermann, y Prasittisopin, 2024).
Por otro lado, la optimización de parámetros de diseño sísmico ha evolucionado significativamente desde los trabajos pioneros (Rosenblueth y Mendoza, 1971) (Hasofer, 1973) (Liu, Dougherty, y Neghabat, 1976) que introdujeron los primeros modelos de optimización durante el ciclo de vida estructural. Investigaciones posteriores han incorporado consideraciones adicionales como costos asociados a que el sistema estructural no falle (Esteva, 1968) (Rosenblueth, 1976), objetivos de confiabilidad enfocada a códigos de diseño (Rackwitz, 2000), acumulación de daño (Alamilla y Tolentino, 2018) e información sísmica detallada (Goda y Hong, 2006), culminando en aplicaciones prácticas para la determinación de coeficientes sísmicos de diseño (García-Pérez, Castellanos, y Díaz, 2005) (García-Pérez y Riaño, 2016; Hosseini Varzandeh y Mahsuli, 2023) (Ordaz, Salgado-Gálvez, Pérez-Rocha, Cardona, y Mena-Hernández, 2017), factores de carga (Orellana, Ruiz, Bojórquez, Reyes-Salazar, y Bojórquez, 2021), y propiedades estructurales óptimas (Esteva, Díaz, García-Pérez, Sierra, y Ismael, 2002).
Con respecto a la distorsión máxima de entrepiso óptima, las primeras investigaciones se centraban únicamente en minimizar el uso de materiales de construcción mientras se cumplían los requisitos de desempeño (Park y Kwon, 2003; Zou y Chan, 2005; Zou y Chan, 2005). Posteriormente, surgieron enfoques que emplean optimización multiobjetivo (Bojórquez et al., 2018; Dong et al., 2023; Kaveh et al., 2015) usando metodologías que emplean técnicas de inteligencia artificial. Estos métodos en general se han enfocado en optimizar la distorsión máxima tolerable de entrepiso para un nivel de desempeño que permite comportamiento no lineal de la estructura durante sismos intensos, mientras que la nueva normativa mexicana requiere que la estructura presente un comportamiento elástico para satisfacer el nivel de desempeño OI, por lo que es necesario realizar estudios orientados a encontrar la distorsión máxima permisible de entrepiso correspondiente a δOI. Se hace notar que el mantener la distorsión δOI dentro de los límites elásticos durante un evento sísmico limita el daño en los elementos estructurales; sin embargo, esto no garantiza la protección de los contenidos sensibles a otras medidas de intensidad sísmica, como la velocidad o la aceleración de piso. Esta limitación resulta particularmente significativa, pues el daño a dichos contenidos podría comprometer la operatividad de la estructura (Hutchinson y Chaudhuri, 2006), incluso si los elementos estructurales permanecen intactos.
El presente artículo presenta una metodología de optimización para determinar la distorsión máxima de entrepiso de diseño que minimice el costo total esperado durante la vida útil de una estructura. Para ello, se emplea un modelo de optimización aplicado a un conjunto de edificios de uso escolar diseñados para satisfacer diferentes valores de δOI. La evaluación de cada estructura se realiza mediante un análisis de costos a lo largo del ciclo de vida de la estructura, considerando escenarios sísmicos representativos del sitio donde se ubican los edificios, y cuantificando las pérdidas económicas derivadas de los daños en sus contenidos.
METODOLOGÍA
El análisis se divide en dos etapas, como se ilustra en el diagrama de bloques de la
figura 1. La primera etapa comprende el
cálculo de la tasa de excedencia de la respuesta estructural
ν(d), integrando la fragilidad estructural con
el peligro sísmico del sitio donde se ubica la estructura. La segunda etapa se
centra en la evaluación del costo total esperado, considerando tanto los costos
iniciales de diseño y construcción, como los costos por daños y reparaciones
asociados a distintos eventos sísmicos a los que se verá sujeta la estructura
durante su vida útil. Finalmente, se determina la distorsión óptima de diseño,
Tasa de excedencia de respuesta estructural (Etapa 1)
La tasa de excedencia de la respuesta estructural indica el número medio de eventos por unidad de tiempo en los que la respuesta alcanza o supera cierto umbral. Se puede calcular combinando las funciones de fragilidad de la estructura con la tasa de excedencia de intensidades sísmicas del sitio en cuestión (Esteva, 1968), mediante la ecuación 1.
donde:
donde
Análisis de costos durante la vida útil (Etapa 2)
La segunda fase de la metodología consiste en asociar las respuestas estructurales que la edificación puede experimentar durante su vida útil con los costos de reparación, las afectaciones a personas lesionadas y los daños en contenidos. En primer lugar, a partir del método de simulación de Monte Carlo (Rubinstein y Kroese, 1981), se construye una serie de respuestas estructurales a lo largo del ciclo de vida de la estructura. Los pasos para llevar a cabo la simulación de las respuestas estructurales se describen a continuación:
1. . Se calculan las funciones de probabilidades acumulada de dδ y ya, empleando la ecuación 3.
donde ν0 es la tasa asociada a una respuesta mínima.
2. . Se construye una historia de distorsiones de entrepiso y aceleraciones de piso a partir del método de la transformación inversa, el cual permite generar una variable aleatoria a partir de su función de probabilidad acumulada y una distribución uniforme.
3. . Se simulan los tiempos entre eventos (Ti). Aquí se supone que estos siguen una distribución exponencial, con parámetro λ igual a ν0 (ver ecuación 4). Para este análisis se considera que la suma de espera entre eventos sea muy cercana a una vida útil de la estructura, la cual aquí se supone igual a 80 años.
donde u es un valor simulado entre 0 y 1, con una distribución uniforme.
4. . Dado que la mayoría de los costos futuros están relacionados con el daño estructural, se calcula el índice de daño Id, definido en la ecuación 5 (Tolentino y Ruiz, 2015). El valor de Id se calcula para cada distorsión simulada a lo largo del ciclo de vida de la estructura.
donde
El costo total,
Si bien el nivel de desempeño de OI proporciona una resistencia considerable, lo
que sugiere costos reducidos tanto en elementos estructurales como en lesiones
personales, estos componentes se mantienen en el análisis con el fin de
considerar todos los escenarios posibles de pérdida. Estos términos, definidos
como funciones de
A partir de la historia de aceleraciones e índice de daño se calculan los costos
asociados a la reparación estructural, personas lesionadas, personas fallecidas
y el daño en contenidos. Estas funciones de costos se detallas en la siguiente
sección. El costo correspondiente a cada respuesta simulada debe trasladarse a
valor presente utilizando la ecuación
7. El proceso de simulación de historias de respuestas estructurales
se repite un número significativo de veces,
donde
FUNCIONES DE COSTOS
Las funciones de costo utilizadas para la estimación del costo total esperado tienen como objetivo asociar la respuesta estructural, ya sea en términos de aceleración de piso o de distorsión de entrepiso, con los costos asociados a tal respuesta. Estas funciones se describen a continuación.
Costo inicial C 0 (δ OI )
Debido a los diferentes niveles de rigidez demandadas por cada uno de los valores
supuestos de
Costo reparación/reconstrucción C RR (δ OI )
Cuando una estructura experimenta un índice de daño mayor a 0.7, es muy difícil
poder rehabilitarla (Tolentino y Ruiz,
2015), como consecuencia el costo por reparación es el costo inicial
más los costos por demolición y limpieza. Por ello se emplean las ecuaciones 10
y 11 para el cálculo del costo de reparación o reconstrucción como función del
índice de daño,
Costo por personas lesionadas C PL (δ OI )
El costo máximo por personas lesionadas se calcula siguiendo el enfoque propuesto por (De León, 1996), donde se estima el número medio de personas lesionadas por unidad de área resultado del sismo del 19 de septiembre de 1985, y se propone una variación cuadrática del costo en función del índice de daño.
donde
Costo por daño en contenidos C C (δ OI )
El costo por daño en contenidos depende principalmente del uso de la estructura. A continuación, se presenta una metodología para construir una función de costos total, que en parte se basa en las referencias (Reinoso, Jaimes, y Esteva, 2010) (Jaimes, Reinoso, y Esteva, 2013) (Jaimes y Reinoso, 2013).
Estimación de pérdidas por daño en inventarios escolares
El término “inventario” utilizado en esta sección se refiere al conjunto de
componentes utilizados para cumplir las funciones de un uso específico. La
manera en que un componente puede dañarse es que éste se voltee o se deslice
lo suficiente para golpearse o caerse. El volteo o deslizamiento de un
objeto no implica necesariamente su reemplazo, por lo que la pérdida
asociada por daño dado una intensidad depende de la fragilidad del
componente que se esté estudiando. Con base en esta consideración, se puede
calcular el costo por daño en un elemento
donde
Por lo tanto, el valor esperado de
El valor esperado del costo por daño del inventario se obtiene al sumar todos los componentes del inventario (ecuación 16):
donde
Para estimar la probabilidad de volteo o deslizamiento

Figura 2 a) Modelado de contenido, representado en OpenSees, b) Curva esfuerzo-desplazamiento de un contenido
La metodología anterior estima el costo por daño en contenidos de un inventario específico, considerando la aceleración del piso donde se ubica. Se debe considerar que un edificio presenta aceleraciones diferentes en cada nivel, debido a su respuesta dinámica y, además, los pisos pueden tener usos e inventarios distintos.
Para estimar la pérdida económica total, es necesario calcular la distribución de la Aceleración Máxima de Piso (AMP) en función de la altura del edificio. Los códigos de diseño sísmico, como la NTC-DS-2023, proporcionan ecuaciones para estimar la AMP a partir de la Aceleración Máxima del Terreno (AMT), con enfoques simplificados (ecuación 17) o más elaborados (ecuación 18).
donde
En la sección 2.2 se mencionó que el parámetro de respuesta para estimar la pérdida por daño en contenidos es la aceleración máxima de piso, la cual, en edificios de mediana altura, generalmente se presenta en el nivel de azotea. Esto significa que la aceleración en los pisos inferiores, asociada a la aceleración máxima de piso, se verá modificada, afectando el daño en los inventarios de esos niveles.
Para construir una función de costo total, es necesario conocer cómo varía la
aceleración de piso entre niveles. Si se define
donde
CASO DE ESTUDIO
Descripción de los edificios analizados
La mayoría de las estructuras dañadas en la Ciudad de México por el sismo del 19
de septiembre de 2017 estaban ubicadas en la zona de transición, llamada así
porque está localizada entre terreno firme y suelo muy blando. El edificio de
estudio se supone desplantado en dicha zona. Se trata de un edificio esencial
para uso escolar de baja altura (cinco niveles) constituido a base de marcos
concreto reforzado. La estructura es regular y posee tres crujías en ambas
direcciones, con una distancia de 8m, la altura de entrepiso es de 4 m. La
geometría del edificio se muestra en la figura
4. El diseño considera una resistencia a la compresión del concreto
de 300 kg/cm², un esfuerzo a la fluencia del acero de refuerzo de 4,200 kg/cm².
La normativa mexicana NTC-DS-2023 establece que para el cumplimiento del nivel
de desempeño de OI debe emplearse un espectro de diseño, usando un factor
Q (este factor considera la capacidad de deformación del
sistema estructural) igual a 1, y un factor de sobre-resistencia
Los edificios se describen como E-1, E-2, E-3 y E-4, según los valores de
Costo inicial
El costo unitario inicial se estima a partir de los principales conceptos de obra que se presentan en la tabla 1, los cuales se obtuvieron del Tabulador General de Precios Unitarios 2023 de la Ciudad de México.
Modelado no lineal
La respuesta inelástica, que ocurre a altas intensidades sísmicas, se obtiene
mediante el uso del programa OpenSees (McKenna,
Fenves, y Scott, 2000), utilizando el enfoque de plasticidad
concentrada. Tanto las trabes como las columnas se modelan con elementos
elásticos con resortes a flexión en los extremos, cuyo comportamiento se
describe mediante relaciones momento-rotación, modeladas de acuerdo con (NIST/ATC, 2017; Gaceta Oficial de la Ciudad
de México, 2023). Para incorporar la degradación cíclica de la resistencia y
rigidez, estas relaciones momento-rotación se modelan utilizando el material
"Hysteretic" de la Biblioteca del programa OpenSees (Mazzoni, Fenves, y Scott, 2006). Las
uniones viga-columna se representan con elementos rígidos y, en cada entrepiso,
se considera un diafragma rígido. Se adopta un amortiguamiento crítico del 5%
para el primer y tercer modos utilizando el modelo de Rayleigh. Además, se
consideran valores medios en la carga viva y muerta, así como los parámetros de
las ecuaciones constitutivas del acero y el concreto. El diseño de las
estructuras se valida mediante un análisis estático no lineal (AENL). A partir
de las curvas de capacidad que se muestran en la figura 6, se observa que las estructuras permanecen elásticas ante
el coeficiente sísmico de diseño (
Análisis dinámicos no lineales
Se realizó una serie de análisis dinámicos incrementales (ADI) para cada
estructura diseñada, considerando 18 eventos sísmicos registrados en la estación
CO47, ubicada muy cerca del sitio de estudio. Estos eventos sísmicos
corresponden a magnitudes entre 5.4 y 8.2
Tabla 2 Movimientos sísmicos empleados
| Fecha | Mw | R(km) | Fecha | Mw | R(km) |
| 10/12/1994 | 6.5 | 273.89 | 15/11/2012 | 6.1 | 191.46 |
| 14/09/1995 | 7.3 | 291.00 | 22/04/2013 | 6.0 | 365.46 |
| 11/01/1997 | 7.1 | 377.53 | 16/06/2013 | 5.9 | 140.82 |
| 15/06/1999 | 6.9 | 228.27 | 18/04/2014 | 7.3 | 294.48 |
| 30/09/1999 | 7.5 | 443.69 | 08/05/2014 | 6.5 | 318.79 |
| 21/07/2000 | 6.1 | 147.74 | 20/03/2015 | 5.6 | 176.14 |
| 13/04/2007 | 6.1 | 277.56 | 08/05 2016 | 6.1 | 367.07 |
En la figura 8 se presentan los resultados de los ADI correspondientes a la distorsión máxima de entrepiso (figura 8a), y a la aceleración máxima de piso (figura 8b).
Tasa de excedencia de intensidades sísmicas
Las tasas de excedencia de intensidades sísmicas se obtuvieron de la ecuación 20 (Esteva, 1968), la cual permite estimar la tasa de
excedencia de un sitio objetivo
Tasa de excedencia de respuesta estructural
Las tasas de excedencia de la distorsión máxima de entrepiso y de la aceleración
máxima de piso, que se presentan en la figura
10, se derivaron de la combinación entre la tasa de excedencia de
intensidades sísmicas, representada como
Costo total por daño en contenidos
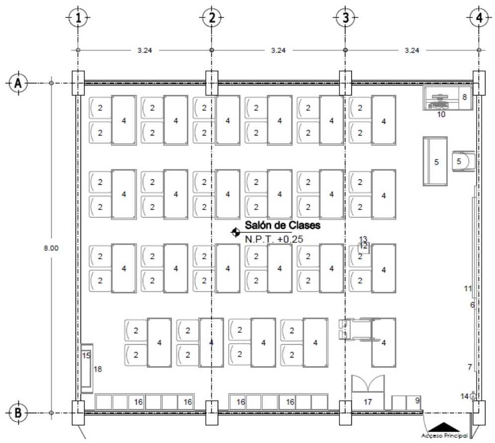
Para el diseño de los espacios y servicios que conforman los planteles educativos se utilizan los criterios normativos elaborados por el Instituto Nacional de la Infraestructura Física y Educativa, (INIFED, 2016). Se considera un inventario correspondiente a un aula de 77.76 m² (ver figura 11). Las características de los contenidos para este inventario se presentan en la tabla 3. El costo esperado por daño en contenidos de este inventario se presenta en la figura 12. Se consideran 5 aulas por nivel. La función del costo total se presenta en la figura 13. El costo total por reemplazo, considerando 25 aulas, asciende a $2,759,025.00 ($133,205.73 USD).
Tabla 3 Datos de los contenidos de un aula, sensibles a aceleración.
| Equipo | W (kg) | Coeficiente de fricción μ |
Costo (MNX) | Cantidad | Fragilidad |
| Cubo metálico | 3.0 | 0.3 | $ 2,618.00 | 2 | 0.3 |
| Escritorio metálico | 68.0 | 0.3 | $ 22,500.00 | 1 | 0.3 |
| Sillón giratorio | 19.0 | 0.25 | $ 6,334.00 | 1 | 0.3 |
| Librero | 30.0 | 0.3 | $ 5,027.00 | 2 | 0.5 |
| Pupitre | 6.0 | 0.3 | $ 1,148.00 | 30 | 0.3 |
| CPU | 4.5 | 0.3 | $ 21,999.00 | 1 | 1.0 |
| Monitor | 6.0 | 0.3 | $ 3,199.00 | 1 | 1.0 |
| Impresora | 9.5 | 0.3 | $ 6,599.00 | 1 | 1.0 |
| Costo Total $ 110,361.00 ($ 5,328.23 USD) |
Costo Total x Fragilidad $ 57,377.0 ($ 2,770.16 USD) |
||||
Estimación del costo total esperado
Siguiendo la metodología propuesta, se utilizan las tasas de excedencia de

Figura 14 Funciones de probabilidad acumuladas a) Distorsión máxima de entrepiso; b) Aceleración máxima de piso

Figura 15 Historia de respuesta simulada; a) Distorsión máxima de entrepiso, b) Aceleración máxima de piso.
Se calcula el nivel de daño para cada valor simulado de distorsión utilizando la ecuación 6. Posteriormente, empleando la metodología previamente descrita, se estima el costo por reparación y el número de personas lesionadas. Asimismo, se determina el costo por daño en contenidos mediante la función de costo total desarrollada, considerando los valores simulados de aceleración de piso. El costo total es la suma del costo inicial, costo por daño, costo por personas lesionadas y costo por daño en contenidos. Con el fin de obtener el costo total esperado, el proceso se repite mediante simulación de Monte Carlo. En el presente estudio se emplearon 10,000 simulaciones que representan diferentes escenarios durante el ciclo de vida de la estructura.
La figura 16 muestra el valor esperado del costo total normalizado con respecto al costo inicial, para los casos de estudio E-1, E-2, E-3 y E-4.
Discusión de resultados
Debido a la alta resistencia estructural que implica cumplir con los requisitos que establecen las NTC-DS-2023 relacionados con el nivel de desempeño de Ocupación Inmediata, la incursión de las estructuras estudiadas en el intervalo no lineal resulta limitada, como se puede ver en la función de probabilidad acumulada de la distorsión máxima de entrepiso que se muestra en la figura 14a. Como consecuencia, los costos asociados a las reparaciones y a las personas lesionadas no aportan significativamente al costo total esperado. Por lo anterior, el costo inicial y el costo por daño en contenidos son los que más influyen en el costo total esperado.
El costo asociado al daño en contenidos depende principalmente de la aceleración de piso, la cual está determinada por el contenido de frecuencias del movimiento sísmico y de las características dinámicas del edificio. Por ejemplo, los resultados de los análisis indicaron que la estructura E-1, con un periodo fundamental de vibración más próximo a las máximas demandas sísmicas, experimenta mayores aceleraciones que la estructura E-3, cuyo periodo se encuentra más alejado de dichas demandas. La diferencia en la respuesta dinámica da lugar a que la estructura E-3 presente menos daños en los contenidos.
En la figura 16 se observa que la
estructura con menor costo total esperado es la E-3, diseñada para un valor
tolerable
CONCLUSIONES
A partir del análisis del costo total esperado durante el ciclo de vida de una estructura escolar, evaluado para diferentes límites de distorsiones máximas de entrepiso que cumplen con el nivel de Ocupación Inmediata, se obtienen las siguientes conclusiones:
Las pérdidas económicas por reparaciones y lesiones personales tienen un impacto limitado en el costo total esperado, debido a la reducida incursión de las estructuras en el intervalo de comportamiento no lineal.
El incremento en la distorsión máxima de entrepiso de diseño dio lugar, en el presente estudio, a periodos estructurales más alejados del periodo fundamental del suelo, lo que redujo las aceleraciones de piso demandadas
Para el caso estudiado, la distorsión máxima de entrepiso permisible óptima resultó igual a 0.01 (valor que corresponde al mínimo costo total esperado), que es 33 % mayor al valor especificado en la NTC-DS-2023.
Se recomienda que las futuras líneas de investigación sobre este tema aborden los siguientes aspectos: a) la expansión del análisis a edificaciones con diferentes características geométricas, así como distintos tipos de uso, con el fin de evaluar de qué manera los requerimientos específicos influyen en los parámetros óptimos de diseño; b) la extensión del estudio a estructuras ubicadas en distintos tipos de suelo de la Ciudad de México, considerando la variabilidad en las condiciones geotécnicas y niveles de peligro sísmico; y c) el análisis de edificios con sistemas estructurales con control de daño (con disipadores de energía, aislamiento sísmico, osciladores de masas resonantes, etc.), así como el estudios de sistemas estructurales mixtos.










nova página do texto(beta)
















