1. Introducción
La Secretaría de Agricultura, Ganadería, Desarrollo Rural, Pesca y Alimentación (SAGARPA), el Fideicomiso de Riesgo Compartido (FIRCO), y otras instituciones internacionales han financiado e implementado tecnologías para generar electricidad a partir del biogás en establos lecheros de la Comarca Lagunera [1]. Sin embargo, éstas no han sido alternativas atractivas para la gran mayoría de los establos ya que, de los 90 biodigestores instalados en la región, solamente alrededor de 10 generan electricidad y aproximadamente 50 queman metano con antorchas de biogás sin ningún aprovechamiento económico.
Un estudio desarrollado en Chile [2] plantea que “antorchas en complejos generadores de biogás son independientes de las condiciones futuras del mercado de los bonos de carbono, ya que de igual manera, el biogás generado se seguirá destruyendo y por ende aprovechando la energía térmica desprendida” (p.2) y explica además que "actualmente solo existen antorchas que son capaces de destruir el metano contenido en el biogás, pero aún no se han implementado soluciones que aprovechen la energía térmica desprendida de la combustión de éste” (p.1).
La importancia de la quema del biogás reside en que el metano contribuye al efecto invernadero 21 veces más que el dióxido de carbono señala [2] y explica que “una tonelada de metano quemado produce 2.75 toneladas de dióxido de carbono por lo que se reduce el impacto en el efecto invernadero en 18.25 toneladas de CO₂” (p.1).
Dado que el biogás combinado con el aire forma un compuesto explosivo [3] advierte que no puede ser simplemente enviado a la atmósfera, sino quemado en una antorcha, solución que, aunque se considera ambientalmente favorable, ocurre sin aprovechar esa energía.
En [4] mencionan que como el biogás se produce continuamente dentro del digestor, si ocurre una perturbación dentro de las plantas o si se produce más biogás del que se puede consumir, existe la posibilidad de ser quemado en una antorcha sin generar ingresos, pero si afectando los costos de producción.
En [5] se menciona el caso de uno de los productores reconocidos en fabricación de antorchas donde explica que los objetivos principales de la antorcha son la liberación de gas en situaciones de emergencia y quemar de forma segura y controlada estos gases no utilizables, evitando su emisión directa a la atmósfera. La empresa norteamericana Groth [6] fabrica los quemadores de gas con modelos que alcanzan una eficiencia destructiva de gases residuales de hasta el 99 %, logrando una quema eficiente y controlada reduciendo humos y olores.
Por razones de seguridad, se menciona en [7] que todas las plantas anaeróbicas deben estar equipadas con una antorcha de emergencia para permitir la eliminación del biogás cuando no se puede utilizar. El gas obtenido de los digestores se utiliza principalmente en calefacción o generación de electricidad.
Según [8], el uso de biogás en cogeneración mitiga emisiones de gas de efecto invernadero (GEI) en comparación con las referencias fósiles, en las siguientes proporciones: la generación de calor mitiga 60 % con respecto al gas natural y 40 % con respecto al petróleo.
Un estudio realizado por [9] señala la ventaja de que las plantas de biogás estén ubicadas en el sitio de la unidad de cría de ganado, pues una cierta cantidad de estiércol no acarrea costos de transporte asociados, lo que representa una ventaja. En este mismo sentido [10] argumenta que, aunque el tratamiento de estiércol y residuos orgánicos tiene un bajo valor energético y una baja eficiencia de conversión de biogás, es una forma beneficiosa para el medio ambiente no sólo para reducir estos impactos, sino también para producir energía y biofertilizantes.
En [1] se menciona que:
"el sector pecuario muestra el mayor potencial de producción de biogás entre los sectores descritos. Si los esfuerzos de promoción y apoyos fiscales se concentran en las empresas con mayor producción de estiércol, equipos logísticos, alta capacidad organizativa y alta capacidad de inversión, especialmente las empresas integradas verticalmente, es muy probable que se catalice exitosamente la industria del biogás pecuario" (p.18).
En el marco de la convocatoria del Programa de Estímulo a la Innovación (PEI 2013) sobre la Gestión Eficiente de la Energía en los establos de La Comarca Lagunera [11], los autores de este trabajo advirtieron sobre el los “altos costos en el calentamiento del agua con resistencias eléctricas” (p.5).
Posteriormente [12] realizó una investigación experimental a nivel de laboratorio que tuvo como objetivo investigar la viabilidad técnica del empleo del biogás como fuente de energía térmica para el calentamiento del agua empleando un calentador doméstico de depósito hecho en México al que se le incorporó un quemador de biogás con diseño propio. Este resultado puede consultarse en la Ficha Técnica de Investigación del CONACYT [13].
Los antecedentes referidos en [11 y 13] sentaron las bases para el desarrollo de la innovación propuesta en este trabajo que contó con el apoyo del Proyecto PEI-CONACYT 253510 del 2018 (concluido en enero del 2019), llamado "Utilización de los gases calientes de la combustión, generados en antorcha de biogás de biodigestores para el calentamiento de agua empleando un economizador”.
Los biodigestores tipo Laguna tienen como medida de seguridad una antorcha que cumple la función de quemar los gases de la combustión del metano. El agua caliente para sanitizar o preparar la leche que se le da a los becerros -entre otros- se resuelve con gas LP o con resistencias eléctricas. Esta aparente contradicción del uso de fuentes no renovables para calentar agua, teniendo una fuente de energía renovable, como el biogás, que se quema a la atmósfera, sin aprovechar la energía liberada, fue lo que llevó a los autores de este trabajo a buscar una alternativa para usar los gases calientes de la combustión del metano para calentar el agua necesaria en los establos lecheros.
El presente trabajo tuvo como objetivos diseñar y validar la innovación de agregar un serpentín a las antorchas que destruya el metano y use el calor derivado de su combustión para calentar el agua que se demanda en diversos procesos de los establos lecheros.
2. Sistema de la idea innovadora
La innovación propuesta en este trabajo, el aprovechamiento del calor que se produce por la combustión del biogás instalando un serpentín al interior de la antorcha, para calentar agua se muestra y explica en la Figura 1.

Figura 1. Esquema simplificado del proceso de calentamiento del agua con una antorcha con serpentín. Fuente: Elaboración propia. Nota: En los establos lecheros tecnificados las excretas y las aguas residuales se depositan en biodigestores (1); cuando el biogás producido no se utiliza para generar electricidad se quema libremente en la atmósfera en un dispositivo identificado como antorcha (2). La idea innovadora parte del diseño de un tipo de antorcha más eficiente (3), en cuyo interior se ha instalado un serpentín (4) por el que circula el agua, que una vez calentada se almacena en un tanque aislado (5) para luego emplearse en varios procesos del establo (6). Se muestra además el quemador (7), también con diseño propio.
Este sistema cubre las funciones de quemar el metano y utilizar el calor de la combustión del biogás para calentar agua.
2.1. Cálculo del proceso de transferencia de calor
Se calcularon, utilizando diversas ecuaciones de transferencia de calor, los parámetros principales de la antorcha con serpentín con el propósito de evaluar si el resultado que se pretende alcanzar es factible de lograrse. Este proceso es necesario, pues se trabaja con biogás, que tiene aproximadamente el 45 % del valor calórico del gas licuado de petróleo (GLP) [14], combustible utilizado por los calentadores disponibles en el mercado.
Datos Iniciales para el cálculo:
Fluido Caliente.
Gas caliente de la combustión del Biogás.
Temperatura de entrada gas caliente (Teh): 400 °C.
Temperatura de salida del gas caliente (Tsh): 200 °C.
Por el alto contenido de compuestos de azufre en los gases de combustión es conveniente mantener la temperatura de salida de los gases en más de 130 °C para evitar la condensación de los vapores de agua presente en los gases de combustión y así disminuir la formación de compuestos ácidos que pudieran dañar la antorcha. La temperatura de combustión no deberá sobrepasar los 850 ºC para evitar la formación de NOx [15].
Flujo volumétrico de Biogás (Gb): 3 m3/h.
Valor Calórico Superior del Biogás (VCS): 25194.04 kJ/m3.
Se fijó este VCS del Biogás como una referencia dado que ese es su valor promedio en este establo. Este VCS puede desviarse del presentado en este ejercicio pues en dependencia de la fuente de obtención, cambiará su composición.
Presión manométrica del biogás (p): 50 mmH2O.
Fluido Frío.
Agua.
Temperatura de entrada del agua (Tec): 18 °C.
Temperatura de salida del agua (Tsc): 79.2 °C.
Flujo volumétrico de agua (Ga): 0.3 m3/h.
Presión manométrica del agua (pa): 0.5 bar.
Viscosidad dinámica (µ): 0.000504 kg/ms.
Calor cedido por el gas caliente:
Se considera para el cálculo del calentador que el calor cedido por los gases de combustión es similar al absorbido por el agua. Se analizaron las resistencias a través de la pared del tubo y las resistencias por el lado interior del serpentín [16].
Determinación del calor cedido.
Cálculo de las condiciones medias de ambos fluidos para el cálculo de la transferencia de calor.
Fluido caliente.
Temperatura media Tm: 300 °C
Viscosidad dinámica (µ): 0.000025348 kg/ms
Número de Prandtl: 0.65
Densidad de los gases de combustión (ρ): 0.5895 kg/m³.
Fluido Frío
Temperatura media Tm: 49 °C
Viscosidad dinámica (µ): 0.000504 kg/ms
Número de Prandtl: 3.25
Densidad del agua (ρ): 985 kg/m³.
Cálculo de la diferencia térmica logarítmica.
El intercambiador se trabaja a flujo cruzado los gases ascienden calentando el agua que circula en sentido contrario.
Temperatura de entrada gas caliente (Teh): 400 °C.
Temperatura de salida del gas caliente (Tsh): 200 °C.
Temperatura de entrada del agua (Tec): 18 °C.
Temperatura de salida del agua (Tsc): 79.2 °C.
Se supone que la temperatura de los gases de combustión homogeniza la superficie exterior del tubo a una temperatura similar a la media logarítmica.
Se hace la estimación del coeficiente global de transferencia de calor (U Global ) para el cálculo del área de transferencia en estas condiciones el intercambio gases calientes-agua el coeficiente global de transferencia de calor está entre 11-283 W/m2°C. Se asume un coeficiente global de 100 W/m2°C por las condiciones de trabajo que se presentan [17].
Cálculo del área de transferencia de calor asumida, Atp
Se utilizó para el serpentín un tubo industrial de acero inoxidable AISI 316L de 50 mm (2 pulgadas de diámetro interior) y 3 mm de espesor.
Cálculo de la posible longitud del tubo que debe ser rolado.
Se asume para el cálculo L=3 m
Cálculo del número de Reynolds, Re para el agua que circula por el interior del tubo.
Donde:
Di: |
Diámetro interior del tubo (m). |
Ga: |
Flujo de agua de enfriamiento en kg/s. |
µ: |
Viscosidad dinámica del agua a 49 °C (kg/ms) |
Ast: |
Área de la sección transversal del tubo (m2) |
Al ser Re≥2300 se considera el régimen turbulento [16].
Cálculo del número de Nusselt. Nud
En este caso al considerarse la homogenización de la temperatura superficial se puede aplicar la correlación de Sieder y Tate para temperatura media del fluido frío [16].
Donde:
ReD: |
Número de Reynolds calculado para el diámetro interior de la tubería (m). |
Pr: |
Número de Prandtl para el agua a la temperatura media del fluido (Tm) 49 °C. |
µ: |
Viscosidad dinámica del agua a la temperatura media del fluido (Tm) (kg/ms). |
µs: |
Viscosidad dinámica del agua a la temperatura máxima del agua (kg/ms). |
L: |
Longitud del tubo (m). |
Di: |
Diámetro interno del tubo (m). |
Cálculo del coeficiente de transferencia de calor medio para el agua
Cálculo de la resistencia a través de la pared y en la capa convectiva interior del tubo.
Se escoge AISI 316L para la construcción del calentador por las propiedades de resistencia a la corrosión que tiene este acero.
Cálculo del Coeficiente Global de transferencia de calor.
Se había asumido un coeficiente global de 100 W/m2°C de un rango que oscilaba entre 11-283 W/m2°C, el resultado de 80.67 W/m2°C se encuentra entre los valores esperados.
Cálculo del área de transferencia de calor.
La nueva área de transferencia de calor es:
Esta área es para un intercambiador limpio, en la práctica se asume un 14 % de incremento del área por la suciedad que puede aparecer en la explotación, [18] esto hace el área de transferencia sucia hasta 1.20 m2 y por tanto la longitud de operación del equipo es de 3.5 m para garantizar el trabajo continuo de este.
Tabla 1. Parámetros principales obtenidos del proceso de transferencia de calor.
| Dimensiones | Valor y unidades de medida |
|---|---|
| Longitud final de la tubería del serpentín (L) | 3.5 m |
| Diámetro interno de la tubería del serpentín (Di) | 0.05 m |
| Altura del intercambiador (H) | 2.5 m |
| Espesor de la tubería del serpentín (e tub) | 3 mm |
| Longitud de cámara de combustión (Lcam) | 1.5 m |
| Volumen de la cámara de combustión (Vcc) | 0.4 m3 |
| Flujo volumétrico del Biogás (Gb) | 3 m3/h |
| Valor calórico superior del Biogás VCS | 25194 kJ/m3 |
| Presión manométrica del Biogás (p) | 50 mmH2O. (4.9 mbar) |
| Flujo volumétrico de agua (Ga) | 0.082 kg/s (0.3 m3/h) |
Fuente: Elaboración propia.
2.2 Diseño del quemador de biogás
El quemador se armó a partir de tubos de quemadores de parrilla comerciales para gas GLP y válvula reguladora estándar. Para su diseño final se tuvieron en cuenta valores de carga térmica, flujo y presión de trabajo necesaria. Las dimensiones del inyector se calcularon considerando la velocidad del biogás en el inyector y la relación de arrastre según la fórmula de Prigg [16] su diseño final determinó un diámetro de garganta de 19 mm y un diámetro de salida de 3 mm.
La velocidad de combustión o propagación de la llama de una mezcla de aire/combustible depende en gran medida del tipo de combustible utilizado. Algunos gases, especialmente el metano, tienen una velocidad de combustión lenta; esto se hace visible en las cocinas de biogás, donde la velocidad de una ligera corriente de aire puede ser más rápida que la velocidad de combustión y alejar la llama del anillo del quemador [19].
En [20] los autores refieren que una de las principales preocupaciones de la combustión de biogás en los quemadores de gas convencionales es su baja presión en el sistema (11 a 70 mm H2O), en comparación con las aplicaciones estándar de GLP (220 a 1000 mmH2O).
La relación aire/biogás calculada es de 6 y se regula en la tobera con un dispositivo denominado ventila. El quemador finalmente se conformó con dos tubos en paralelo y 100 puertos con orificios de 4 mm. Las ecuaciones fundamentales empleadas y los resultados obtenidos en este diseño se presentan en la Tabla 2.
Tabla 2. Ecuaciones empleadas y resultados obtenidos en el diseño del quemador.
| Cálculo del diámetro del inyector (d0) |
|
|
| Cálculo de la velocidad del gas en el orificio (v0). |
|
|
| Cálculo de la relación de arrastre del quemador (r). |
|
|
| Cálculo del diámetro de la garganta (dt) |
|
19 mm |
| Cálculo de la presión en la garganta ( |
|
|
| Cálculo del flujo óptimo de la mezcla aire y gas (Qm) |
|
|
| La caída de presión en el tubo de mezcla ( |
|
|
| Cálculo del área de salida total de gas (Ap). |
|
|
Fuente: Elaboración propia. Donde: (s) gravedad específica; (p) presión del gas antes del orificio; (Cd) coeficiente de descarga de orificio; (Q) flujo de gas; A0 área de la sección transversal del orificio; (dt) diámetro de la garganta; (ρ) densidad de la mezcla; (Lm) longitud del tubo de mezcla; (vp) velocidad estequiométrica de la llama de biogás.
2.3 Diseño del prototipo de Antorcha
La planta que se contrató para la manufactura de la antorcha fue Equipos Inoxidables del Norte del Grupo Industrial “ACV Group”, con productos principalmente orientados a satisfacer la demanda de los Sectores de Generación de Energía, Salud, Minería, Construcción, Petróleo, Gas y Sector Aeroespacial.
Luego de presentar el borrador de la nueva antorcha al ingeniero principal de diseño mecánico, surgieron varios ajustes, el primero relacionado con la imposibilidad de rolar un tubo de 50 mm, por lo que se determinó ensamblarlos por secciones, unidas por codos de 90 º radio corto y niples soldados. Esta consideración de diseño no afectó los cálculos de transferencia de calor iniciales ya que se respetó el diámetro, el espesor y la longitud final del serpentín obtenida del cálculo, la soldadura se realizó después de una preparación de los biseles de los tubos a soldar, por lo que el rellenado de estos no introdujo un error significativo en el cálculo.
La nueva antorcha (Figura 2) se fabricó con estructura rectangular en lugar de la clásica circular, como se calculó inicialmente, para lograr dos propósitos: a) facilitar el ensamble y desensamble del serpentín al tener una tapa frontal desmontable y b) mantener constante el largo de cada tramo de tubos, cuando estos queden dispuestos en forma de zigzag a 16º. El empleo de disposiciones en forma de zigzag en intercambiadores de calor es referenciado en múltiples patentes [21-24]. El posible calor cedido al exterior no se tuvo en cuenta pues la antorcha quedó forrada con un sistema de espuma de poliuretano que utiliza agua como agente de expansión, libre de sustancias perjudiciales para la capa de ozono, así como también de gases que promueven el efecto invernadero, su conductividad térmica oscila entre 0.003-0.030 W/m°C, su marca comercial es ECO-FOAM-040 [25].

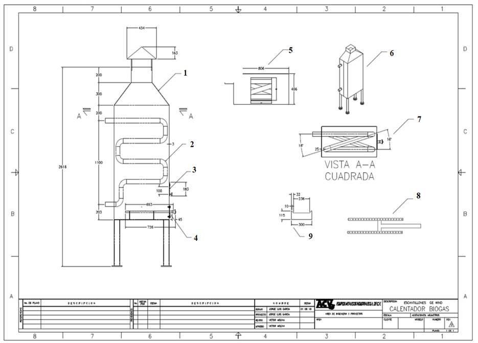
Figura 2. Diseño final de la Antorcha con serpentín. Fuente: Elaboración propia. Nota: El cuerpo de la Antorcha (1) fue fabricado de AISI 316L. El serpentín (2) es también de Acero AISI 316L con tubo de 50 mm interno x 3 mm espesor, con codos de 90 radio corto y niples soldados. En (3) se incorporó una mirilla de 100 x 150 mm y tapa de 150 x 200 mm para poder visualizar la llama en el quemador y tomar temperatura al interior de la antorcha. Para poder instalar y analizar su funcionamiento, el quemador (4) se inserta a través de un hueco de 100 mm de diámetro y se sella con una tapa de 150 mm de diámetro con barrenos al centro de 27 mm. La vista superior A-A de la antorcha (5) permite observar la disposición del serpentín. En (6) se muestra el isométrico de la antorcha. La disposición de los tubos del serpentín en zig-zag se observa en (7). El quemador se muestra en (8) y en (9) las bases que se diseñaron para fijarlo en la parte inferior de la antorcha.
El plano final a partir del cual se fabricó la nueva antorcha con sus componentes se muestra en la Figura 2.
El proceso de manufactura en la Planta industrial ACV Group se realizó en el último trimestre del año 2018 y el equipo quedó listo para pasar a las pruebas experimentales.
3. Métodos experimentales
Los experimentos se desarrollaron durante los meses de diciembre de 2018 y enero de 2019.
La Figura 3 muestra el calentador comercial instalado en el banco de ensayo donde se validó el biogás para calentar agua [13] y en la Figura 4 la antorcha objeto de estudio instalada en el propio banco de ensayo. El tanque (2) para eliminar H2S (mediante un proceso de adsorción) ya no se empleó, porque tal como se plantea en [26] no se requiere tratamiento para eliminarlo si solamente es quemado. No obstante, se mantuvo su instalación para mayor comodidad y no alterar las facilidades para instalar el medidor de presión de entrada del biogás y la trampa para atrapar partículas de agua que normalmente arrastra el biogás.

Figura 3. Banco de ensayo con calentador CALOREX G-60 (1) y filtro H2S (2). Fuente: Elaboración propia.
En el extremo izquierdo de la Figura 5 se muestra la antorcha de biogás (1) que se instaló en el establo cuando se contrató el sistema integral del biodigestor y a la derecha de la imagen, la antorcha objeto de estudio (2). Se aprecia la tubería de alimentación de biogás (izquierda inferior) que tiene una derivación para alimentar el banco de ensayos.

Figura 5. Antorcha en Banco de Ensayo (1) y Antorcha industrial actual (2). Fuente: Elaboración propia.
3.1. Organización del experimento y corridas
El experimento se realizó en ambiente relevante toda vez que se ubicó en un área cercana a la antorcha industrial y se empleó biogás vivo en el experimento.
En la Figura 6 se muestran los elementos principales del sistema de calentamiento.

Figura 6. Antorcha con serpentín en posición de trabajo. Fuente: Elaboración propia. Nota: El serpentín, que funciona como intercambiador de calor, está alojado al interior de la Antorcha (0), tiene una longitud de 4,000 mm, siendo la longitud efectiva de transferencia de calor 3,500 mm, el incremento de 500 mm, que difiere del cálculo de transferencia de calor realizado, se debe al diseño de la tubuladura de salida y no recibe calor, el diámetro de final es de 50 mm y presenta una capacidad de llenado de 8 ± 0.02 L. El primer paso del experimento fue llenar el tanque de almacenamiento (1) con agua de la llave. Una bomba centrífuga de ½ kW Marca PEDROLLO (2) succiona el agua del tanque y la impulsa hasta la entrada (3) de agua de la Antorcha. El flujo se regula con válvula de globo y se mide con un medidor de agua tipo turbina (F); el flujo de agua no es siempre constante, sino que se va incrementando a lo largo del tiempo. El agua sale de la Antorcha por tubo de salida (4) con una temperatura (T) fluye al depósito y se inicia el proceso de recirculación Antorcha-Tanque aislado hasta que se logre alcanzar la temperatura de trabajo, alrededor de 70 ºC; llegado ese momento el agua almacenada está disponible para los procesos que se requieran en el establo. La temperatura del agua se mide con termómetro instalado en el depósito (1). Las mangueras de conducción (M) son de neopreno resistentes a temperaturas medias. El flujo de biogás es medido por un flujómetro rotatorio. Un medidor múltiple permite monitorear las concentraciones de (CH4, CO2 y H2S) del biogás durante el experimento.
3.2. Diseño del experimento y procesamiento de las mediciones
En este tipo de procesos, que operan en períodos cortos de tiempo, siempre deben realizarse varias corridas de modo de obtener varias muestras como respuestas [27], por ello, el diseño contempló realizar 15 corridas con muestreo duplicado (dos muestras diarias, en intervalos de un día) en horarios de 7 y 10 am, en total se tomaron 30 muestras. El experimento tuvo como objetivo probar que hay consistencia en el comportamiento de la temperatura del agua contra el tiempo en las 30 muestras analizadas.
Para normalizar las mediciones se decidió medir el incremento de temperatura en los minutos 0; 17; 36; 54; 77; 117 y 130 e incrementar el flujo de entrada de agua a valores entre 4 y 8 L/min (Tabla 3), t es un valor experimental que representa el tiempo en que el agua en el tanque (4) se homogeniza a una temperatura (T) cuando circula un flujo constante (Q). Por ejemplo: el tiempo t = 77 min es el que transcurrió desde t = 0 min hasta t =77 min para que los 200 litros del tanque alcanzaran el valor de 70 °C solicitado por el establo, con un flujo (Q) de recirculación de 8 L/min.
Tabla 3. Valores de tiempo de homogeneización y flujo de agua en el diseño del experimento.
| Tiempo t = min (en que se homogeniza el agua en el tanque
para un flujo Q) |
0 | 17 | 36 | 54 | 77 | 117 | 130 |
| Flujo de agua Q = L/min | 4 | 5 | 6 | 7 | 8 | 8 | 8 |
Fuente: Elaboración propia.
Los parámetros a medir en los minutos establecidos fueron: Temperatura del agua ºC; tiempo en minutos; presión manométrica del biogás (p) mmH2O y flujo volumétrico del biogás (Q) m3/h; estas dos últimas variables se midieron con manómetro diferencial y flujómetro rotatorio, respectivamente.
Además, se midió el contenido de CH4 y de CO2 y las ppm de H2S en el biogás. Como método de medición, se empleó un detector de gases múltiples CH4/O2/CO/H2S marca Draeger-Grainger.
4. Discusión de resultados
En la Tabla 4 se presentan los datos relacionados con el comportamiento del biogás en las 30 muestras analizadas.
Tabla 4. Características del biogás en las 30 muestras analizadas.
| Presión biogás | Flujo volumétrico | Concentración del CH4 | Concentración del CO2 | Valor del H2S |
|---|---|---|---|---|
| mm H2O | m3h-1 | % | % | ppm |
| 70(±)5 | 3(±)0.3 | 64(±)2 | 33(±)2 | >10,000 |
Fuente: Elaboración propia.
La desviación de los valores en un rango de (±) 2 % puede explicarse por varias razones, una de ellas es haber realizado las corridas experimentales en horarios fijos y en días con condiciones atmosféricas similares. La otra razón es la estabilidad mostrada en el comportamiento de los valores anteriormente mencionados en el establo, pues fueron avalados por el Laboratorio de Biorremediación de la Facultad de Ciencias Biológicas de la Universidad Autónoma de Coahuila, Unidad Torreón, cuando realizó un estudio sobre los factores fisicoquímicos del biodigestor y la calidad de su fuente de energía calórica [13]. Desde luego que estos valores pueden cambiar en diferentes horas del día, del año y el tipo de biodigestor.
La Figura 7 muestra los resultados del comportamiento promedio de las 30 muestras de temperatura del agua (T) contra tiempo de calentamiento (t) incluyendo su desviación.

Figura 7. Medias y desviaciones estándar del comportamiento de la temperatura del agua en la nueva antorcha con serpentín. Fuente: Elaboración propia.
Para probar que la consistencia del proceso de calentamiento del agua fuera confiable, se planteó la hipótesis nula (Ho) de que las temperaturas (T) de las 30 muestras medidas en los siete tiempos (t) establecidos fueran iguales (hipótesis de igualdad de medias). Se aplicó la técnica estadística ANOVA de un factor [28 y 29] para las 30 corridas en la medición de la temperatura del agua. Los resultados estadísticos (F=1.2; gl=29 y p>0.05) implicaron el no rechazo de la hipótesis nula, indicando que las medias de temperatura fueron iguales, para concluir que el proceso de calentamiento fue consistente en las 30 muestras tomadas.
El uso de la prueba ANOVA se justifica si se cumple con los supuestos de equivalencia de grupos, independencia de muestras, normalidad de la variable cuantitativa y homogeneidad de varianzas [30]. En este trabajo se cumplió con las cuatro condiciones. La equivalencia de grupos para las 30 muestras fue de n=7 para todos los casos. La independencia de grupos se observó porque las muestras se tomaron en diferentes momentos en el tiempo. La normalidad de las variables se evaluó con la prueba de Shapiro Wilk (muestras pequeñas) [31] con valores de significancia que oscilaron, según la muestra, desde 0.063 hasta 0.121 (p>0.05) implicando el no rechazo de la hipótesis nula de normalidad. En cuanto a la prueba de homogeneidad de varianzas (conocida también como homocedasticidad) se utilizó el estadístico de Levene obteniendo un valor de L=1.1 y una p>0.05 no rechazando la hipótesis nula de homogeneidad de varianzas entre grupos.
En la Tabla 3 se muestra la media y desviación estándar de temperatura (T) para cada tiempo (t) y flujo (Q).
Tabla 3. Valores de tiempo de homogenización, de temperatura y flujo de agua en los resultados del experimento.
| Tiempo t = min (en que se homogeniza el agua en el tanque para un flujo Q) | 0 | 17 | 36 | 54 | 77 | 117 | 130 |
| Flujo de agua variable Q = L/min | 4 | 5 | 6 | 7 | 8 | 8 | 8 |
| Media de la temperatura del agua ºC | 18.60 | 37.97 | 54.07 | 63.40 | 69.87 | 70.10 | 70.07 |
| Desviación estándar de los valores de temperatura | 1.13 | 1.35 | 1.57 | 1.77 | 1.22 | 1.12 | 0.94 |
Fuente: Elaboración propia.
El incremento de la temperatura a lo largo del tiempo, aparejado a un incremento del flujo, se debe a los siguientes factores: a) la recirculación del fluido circulante, el cual va ganando temperatura a medida que transcurre el tiempo, b) un incremento del coeficiente de transferencia de calor por convección ligado al aumento de flujo controlado de la prueba y c) a una estabilización del proceso de combustión. El recubrimiento exterior con ECO-FOAM-040 ayuda en este proceso de estabilización de la temperatura el evitar pérdidas al medio exterior.
El proceso partió desde el estado frío con un flujo mínimo. A medida que el agua y la cámara de combustión incrementaron su temperatura y se estabilizó el proceso de combustión se inyectó agua de manera controlada al tanque de almacenaje del circuito. Este tanque aislado permite homogenizar la temperatura del nuevo flujo de agua apoyado en su condición de recipiente aislado y capacidad de almacenaje. Un incremento del flujo mejora la transferencia por convección al incrementar los valores del coeficiente global de transferencia. El proceso continúa de manera controlada hasta alcanzar la temperatura de 70 °C para un flujo de agua de 8 l/min. La forma de calentamiento utilizado se basa en el proceso de trabajo de una caldera para la producción de agua caliente.
En comparación con otros trabajos, en la Ficha pública del proyecto CONACYT 231389 [13], titulado “Gestión eficiente del biogás para generar energía térmica”, se describe que el agua fue calentada con biogás en un calentador comercial de depósito con capacidad de 220 litros. En la Figura 8 se presenta el comportamiento de ese resultado (curva en azul) en donde el proceso de calentamiento dura 170 minutos hasta alcanzar 90 ºC. La homogenización (mezclar agua fría con caliente hasta estabilizar ambas temperaturas) se produce a los 200 minutos y se estabiliza en alrededor de 68 ºC a 70 °C. En el caso de la Antorcha con serpentín, aporte de este estudio (curva en rojo), la homogenización se alcanzó a partir de los 70 minutos, temperatura que se mantuvo constante pues solo se recirculó agua caliente entre la antorcha y el tanque de almacenamiento.

Figura 8. Comparativo de resultados con calentador comercial y la antorcha con serpentín objeto de estudio. Fuente: Elaboración propia. NOTA: El modelo de calentamiento del agua en la antorcha de biogás, PEI 2018, se interpreta mediante la ecuación de la curva polinómica de 4to grado, (mostrada en la parte superior de la figura) y permite obtener el valor estimado de la temperatura (T) en ºC, contra el tiempo de calentamiento (t) en minutos. Los valores de los coeficientes se presentan en la Tabla 4.
Ambos experimentos se realizaron en igual banco de ensayo, en meses de invierno. Este ahorro de tiempo y energía avaló la superioridad del resultado actual en comparación con su antecesor.
Para cada proceso de calentamiento (llegar de temperatura ambiente a 70 ºC) la antorcha propuesta requiere 3.5 m3 de biogás en lugar de los 10 m3 que requiere el calentador de depósito para cumplir el mismo objetivo, representando un ahorro en el consumo de biogás de aproximadamente 65 %.
Esta innovación puede ser replicada en todos los establos de la región y del país con necesidades de agua caliente para sus procesos. Hay ejemplos en climas templados y fríos donde se emplea el agua caliente como calefacción, tal como es descrito en [32], quienes desarrollaron un sistema donde el agua calentada con biogás fluye hasta un panel hecho de aleación de aluminio que incrementa la temperatura en una incubadora para cerdos.
Se realizó una modelación de los resultados obtenidos en las mediciones a través de un polinomio de 4to grado. Para el ajuste y la obtención de los coeficientes del polinomio se utilizó la herramienta Solver de Excel, la bondad del ajuste fue corroborada mediante la obtención de un valor mínimo en la sumatoria de los residuos igual a 0.1 ºC y un coeficiente de correlación r entre los datos del modelo y las mediciones reales igual a 0.9999.
La ecuación del polinomio obtenido es T=a+bt+ct2+dt3+et4 con los valores de los coeficientes mostrados en la Tabla 4.
Tabla 4. Valores del polinomio de 4to grado.
| a | b | c | d | e |
| 18.600634 | 1.2864446 | -0.008466108 | -0.00000592 | 1.41E-07 |
El sistema de gestión de eficiencia energética presentado en este trabajo amplió las funciones de las antorchas instaladas en los establos que cuentan con biodigestores. En este trabajo se propone una solución que propone sustituir los servicios externos por el calor de combustión del biogás para calentar el agua en dos procesos: el primero destinado a desinfectar el área de ordeño, que requiere 500 litros de agua caliente tres veces al día y el segundo para el calentamiento de la leche administrada al becerro. Esta solución tiene un beneficio económico, ya que es una alternativa que permite el uso de una fuente de energía renovable desperdiciada para cumplir con los dos procesos de calentamiento de agua ya discutidos.
Adicionalmente, la innovación tiene un beneficio ambiental, dado que el consumo de electricidad emite a la atmósfera más de 100 mil kg de CO2 que con la innovación podrán evitarse. Se toma como referencia [33] donde se informa que el factor de emisión será: “0.454 toneladas de CO2/MWh” para el año 2015. La quema de biogás también implicó emisión de CO2, aunque en menor cantidad porque, aunque el biogás es 21 veces más contaminante que el CO2, una tonelada de metano CH₄ quemado, produce 2,75 toneladas de dióxido de carbono CO2, o sea, quemado emite 87 % menos de CO2 a la atmósfera. El sistema de antorcha propuesto requiere también de cierta cantidad de electricidad pues la bomba de recirculación es de ½ kW, trabaja 8 horas diarias y consume alrededor de 3000 kW al año y emite más de 1300 ton de dióxido de carbono. Finalmente, el costo de la electricidad consumida por esta bomba centrífuga es alrededor del 1 % del costo anual del calentamiento del agua tanto con gas GLP como con electricidad.
Resultados de trabajos relacionados con el presente dan una perspectiva del aporte del presente estudio. Un trabajo desarrollado por [34] explora diversos escenarios tecnológicos de empleo del biogás, lo que resultaba en diferentes costos totales de inversión, pero en todos los casos se necesitaba un digestor que produjera de manera eficiente biogás, y una antorcha que impidiera la liberación de metano. Cuando la producción de biogás es comparativamente superior al consumo de biogás de la planta durante un tiempo determinado y el biogás no se puede almacenar se quema el exceso de biogás. Este trabajo coincide con la necesidad de la disposición del metano, pero no llega a proponer un sistema eficiente de disposición del gas como aquí se propone.
En [35] los autores comentan que el biogás se veía simplemente como un subproducto obtenido de la descomposición anaeróbica de los desechos orgánicos hasta que descubrieron cómo obtener el rendimiento económico de la planta de biogás producida por la digestión del estiércol de bovino y el estiércol de oveja; el biogás producido se quemó en una unidad de cogeneración CHP (combinación de calor y potencia) para generar electricidad y calor. Ese trabajo coincide con el presente en el objetivo de obtener un rendimiento económico de los desechos orgánicos, con la diferencia que en esa investigación la producción de biogás se utilizó para generar electricidad la cual posteriormente se utilizaría para el calentamiento de agua, mientras que aquí el calor producido por la combustión del metano se aprovechó directamente para el calentamiento del agua.
Otro trabajo [36] que emplea unidades CHP usa un generador de 15 kW activado por biogás que produce electricidad, y el calor separado genera agua caliente que se usa para mantener la temperatura del digestor a un nivel estable. En [37] se explican diversas alternativas para la utilización del biogás: un motor de combustión interna o una microturbina que genera electricidad; un calentador que usa la combustión del biogás para generar calor necesario en la granja; biogás limpio combinado con gas natural; como combustible para medios de transporte o sencillamente quemado en una antorcha de seguridad. En el caso de la innovación propuesta en este trabajo se han combinado de una manera original dos de los procedimientos referidos en [37] para lograr que la antorcha de seguridad se emplee también para generar calor.
El trabajo más relacionado al presente se desarrolló en Chile [2], donde se construyó una antorcha multifuncional para la destrucción de metano y el uso de energía térmica para calentar el agua con la diferencia de que el dispositivo a través del cual circula el agua no está alojado dentro de la antorcha, como el serpentín de esta investigación, sino a la salida de gases como un economizador. Se menciona en [2] que no existen referencias acerca de recuperación de energía a través de las antorchas de quema de metano pues los países prefieren emplear el biogás para generar energía eléctrica. No obstante, entiende que la vía de recuperar energía térmica es más factible para pequeños y medianos inversionistas y es por ello que concentra su investigación en la recuperación del calor generado en antorcha de biogás.
En Nueva York [38] algunas granjas grandes capturan metano y lo usan como energía, pero esos sistemas son caros y un gran porcentaje de la infraestructura debe ser reemplazada en un período de cinco años debido a elementos corrosivos en los gases. Una situación similar a esta ocurre en La Laguna y es una de las causas que limita el generar electricidad con biogás [12]. Las cubiertas del biodigestor y las antorchas también tienen otros beneficios, como el control de olores, la reducción de los costos de acarreo y la reducción del desbordamiento de los fenómenos meteorológicos extremos. Los investigadores detectan simplemente las unidades de almacenamiento de estiércol y luego queman el metano capturado para destruirlo. La instalación de cubiertas con antorchas podría mitigar 1.8 millones de toneladas métricas de dióxido de carbono equivalentes al año a partir del metano agrícola en el estado, un valor estimado de 224 millones de dólares.
5. Conclusiones
La antorcha con serpentín, propuesta en este trabajo, además de mostrar consistencia en el calentamiento del agua, alcanza la temperatura de homogeneización en un 66 % más rápido en comparación con calentadores comerciales a biogás sin serpentín representando además un ahorro en el consumo de biogás de aproximadamente 65 %.
La antorcha con serpentín no solamente quema el metano, como lo hacen las antorchas convencionales, sino que también aprovecha el calor generado en la combustión para calentar el agua utilizada en los procesos de calentamiento de la leche para becerros y la sanitización de áreas del establo como las salas de ordeño. La innovación propuesta en este trabajo amplió las funciones de las antorchas instaladas en los establos que cuentan con biodigestores.
La antorcha con serpentín tiene la característica de que puede diseñarse y fabricarse de acuerdo con las necesidades propias de cada establo lechero. Lo anterior tomando en cuenta que en la Comarca Lagunera predominan los establos lecheros con sistemas intensivos con hatos, predominantemente, de cuatro mil a diez mil vacas. Pero también esta tecnología puede usarse en unidades de producción pecuarias que requieren agua caliente para diversos procesos, como la porcicultura, o unidades de producción que requieran calefacción en regiones con climas fríos o templados.
El diseño puede ser modular para aplicaciones de diversas capacidades, dada esta forma de recuperación de energía térmica, y así acomodar en una sola estrategia de ensamblaje varias aplicaciones.









nueva página del texto (beta)



